Vendita
Appartamento a Porto Torres
PORTO TORRES (SS)
A partire da € 221.845
NUMERO PROCEDURA E DATA ASTA
9424SS.120326
INDIRIZZO
VIA CAMILLO BENSO DI CAVOUR 16 PORTO TORRES SASSARI
DESCRIZIONE
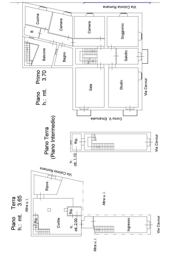
Abitazione su quattro livelli, composta da locali sgombero, deposito piu' cortile al piano terra; al primo piano soggiorno, studio, due camere, cucina, due bagni, balconi e tre terrazze; al secondo piano sei locali , soffitta e bagno; terzo piano terrazza.
ONEIKA – Aste Immobiliari, da oltre 15 anni nel settore delle aste immobiliari, garantisce assistenza specializzata nel campo delle procedure esecutive e delle aste giudiziarie immobiliari.
Lo studio offre:
- Un servizio di assistenza nella ricerca dell'immobile e nell'analisi della documentazione che riguarda la procedura scelta;
- Preparazione dell'istruttoria necessaria alla partecipazione all'asta;
- Partecipazione all'asta con l'assistenza di professionisti seri e competenti;
- Garanzia di assistenza fino alla consegna dell'immobile;
- Supporto, con l'ausilio di specialisti del settore, nell'ottenimento di mutuo o finanziamento se necessario.
Siamo un team di professionisti in grado di fornire la migliore assistenza, studiando con il cliente la giusta strategia finalizzata all'aggiudicazione.
La cura del cliente è la nostra priorità!
La strada per la casa dei tuoi sogni passa da noi...
Contattaci per avere maggiori informazioni sull'immobile e su come partecipare all'asta in totale sicurezza.
Oneika – Aste Immobiliari - Mob. 344.6533655 -AM
9424SS.120326
INDIRIZZO
VIA CAMILLO BENSO DI CAVOUR 16 PORTO TORRES SASSARI
DESCRIZIONE
Abitazione su quattro livelli, composta da locali sgombero, deposito piu' cortile al piano terra; al primo piano soggiorno, studio, due camere, cucina, due bagni, balconi e tre terrazze; al secondo piano sei locali , soffitta e bagno; terzo piano terrazza.
ONEIKA – Aste Immobiliari, da oltre 15 anni nel settore delle aste immobiliari, garantisce assistenza specializzata nel campo delle procedure esecutive e delle aste giudiziarie immobiliari.
Lo studio offre:
- Un servizio di assistenza nella ricerca dell'immobile e nell'analisi della documentazione che riguarda la procedura scelta;
- Preparazione dell'istruttoria necessaria alla partecipazione all'asta;
- Partecipazione all'asta con l'assistenza di professionisti seri e competenti;
- Garanzia di assistenza fino alla consegna dell'immobile;
- Supporto, con l'ausilio di specialisti del settore, nell'ottenimento di mutuo o finanziamento se necessario.
Siamo un team di professionisti in grado di fornire la migliore assistenza, studiando con il cliente la giusta strategia finalizzata all'aggiudicazione.
La cura del cliente è la nostra priorità!
La strada per la casa dei tuoi sogni passa da noi...
Contattaci per avere maggiori informazioni sull'immobile e su come partecipare all'asta in totale sicurezza.
Oneika – Aste Immobiliari - Mob. 344.6533655 -AM
Contratto Vendita
Asta si
Rif 9424SS.120326
Prezzo € 221.845
Provincia Sassari
Comune Porto Torres
Indirizzo Via Camillo Benso di Cavour 16">
Vani 12
Camere 6
Bagni 3
Classe energetica
Non indicata
Riscaldamento autonomo
Condizioni abitabile
Spese condominiali € 1
Anno di costruzione 1967
Cucina abitabile
Consistenze
| Descrizione | Superficie | Sup. comm. |
|---|---|---|
| Principali | ||
| Immobile - piano terra | 291 Mq | 291 Mqc |
| Totale | 291 Mqc | |














Zoom della mappa
Apri con:
Apple Maps
Google Maps
Waze
Apri la mappa
