Vendita
Appartamento a Cabras
CABRAS (OR)
A partire da € 110.306
NUMERO PROCEDURA E DATA ASTA
5914OR.190326
INDIRIZZO
Via Arborea, 17, 09072 Cabras Oristano
DESCRIZIONE
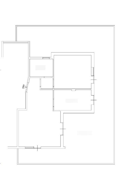
Immobile di civile abitazione su tre livelli: piano seminterrato, piano terra, piano primo, veranda e cortile anteriore e posteriore. Piano seminterrato unico ambiente; al piano terra ingresso, soggiorno con angolo cottura, disimpegno, bagno ; al primo piano disimpegno tre camere, un bagno.
ONEIKA – Aste Immobiliari, da oltre 15 anni nel settore delle aste immobiliari, garantisce assistenza specializzata nel campo delle procedure esecutive e delle aste giudiziarie immobiliari.
Lo studio offre:
- Un servizio di assistenza nella ricerca dell'immobile e nell'analisi della documentazione che riguarda la procedura scelta;
- Preparazione dell'istruttoria necessaria alla partecipazione all'asta;
- Partecipazione all'asta con l'assistenza di professionisti seri e competenti;
- Garanzia di assistenza fino alla consegna dell'immobile;
- Supporto, con l'ausilio di specialisti del settore, nell'ottenimento di mutuo o finanziamento se necessario.
Siamo un team di professionisti in grado di fornire la migliore assistenza, studiando con il cliente la giusta strategia finalizzata all'aggiudicazione.
La cura del cliente è la nostra priorità!
La strada per la casa dei tuoi sogni passa da noi...
Contattaci per avere maggiori informazioni sull'immobile e su come partecipare all'asta in totale sicurezza.
Oneika – Aste Immobiliari - Mob. 344.6533655 -AM
5914OR.190326
INDIRIZZO
Via Arborea, 17, 09072 Cabras Oristano
DESCRIZIONE
Immobile di civile abitazione su tre livelli: piano seminterrato, piano terra, piano primo, veranda e cortile anteriore e posteriore. Piano seminterrato unico ambiente; al piano terra ingresso, soggiorno con angolo cottura, disimpegno, bagno ; al primo piano disimpegno tre camere, un bagno.
ONEIKA – Aste Immobiliari, da oltre 15 anni nel settore delle aste immobiliari, garantisce assistenza specializzata nel campo delle procedure esecutive e delle aste giudiziarie immobiliari.
Lo studio offre:
- Un servizio di assistenza nella ricerca dell'immobile e nell'analisi della documentazione che riguarda la procedura scelta;
- Preparazione dell'istruttoria necessaria alla partecipazione all'asta;
- Partecipazione all'asta con l'assistenza di professionisti seri e competenti;
- Garanzia di assistenza fino alla consegna dell'immobile;
- Supporto, con l'ausilio di specialisti del settore, nell'ottenimento di mutuo o finanziamento se necessario.
Siamo un team di professionisti in grado di fornire la migliore assistenza, studiando con il cliente la giusta strategia finalizzata all'aggiudicazione.
La cura del cliente è la nostra priorità!
La strada per la casa dei tuoi sogni passa da noi...
Contattaci per avere maggiori informazioni sull'immobile e su come partecipare all'asta in totale sicurezza.
Oneika – Aste Immobiliari - Mob. 344.6533655 -AM
Contratto Vendita
Asta si
Rif 5914OR.190326
Prezzo € 110.306
Provincia Oristano
Comune Cabras
Indirizzo Via Arborea 17">
Vani 7
Camere 3
Bagni 2
Classe energetica
Non indicata
Riscaldamento autonomo
Condizioni abitabile
Spese condominiali € 1
Anno di costruzione 1967
Cucina angolo cottura
Consistenze
| Descrizione | Superficie | Sup. comm. |
|---|---|---|
| Principali | ||
| Immobile - piano terra | 230 Mq | 230 Mqc |
| Totale | 230 Mqc | |











Zoom della mappa
Apri con:
Apple Maps
Google Maps
Waze
Apri la mappa
