Vendita
Appartamento a Roma
ROMA (RM)
- ZONA Appio Latino
A partire da € 162.000
NUMERO PROCEDURA E DATA ASTA
21923RM.020426
INDIRIZZO
Via Tommaso da Celano, 18, 00179 Roma
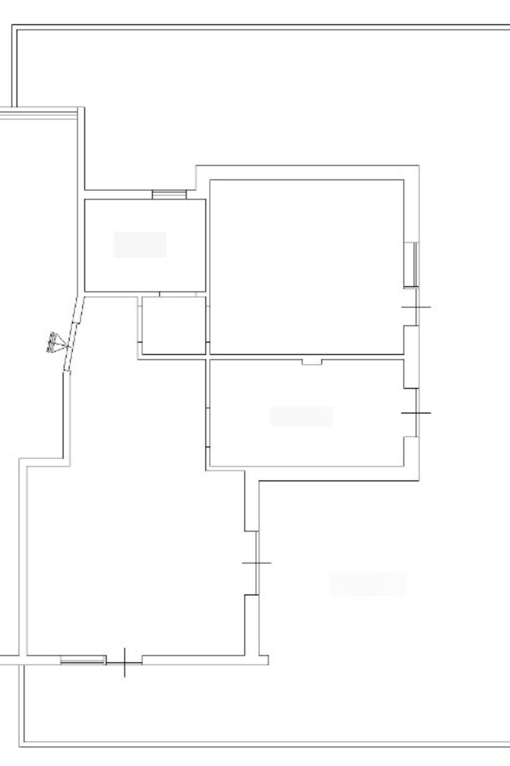
DESCRIZIONE
Appartamento al piano terra, interno 1, composto da ingresso, disimpegno, due camere, cucina, un bagno ed un terrazzo.
ONEIKA – Aste Immobiliari, da oltre 15 anni nel settore delle aste immobiliari, garantisce assistenza specializzata nel campo delle procedure esecutive e delle aste giudiziarie immobiliari.
Lo studio offre:
- Un servizio di assistenza nella ricerca dell'immobile e nell'analisi della documentazione che riguarda la procedura scelta;
- Preparazione dell'istruttoria necessaria alla partecipazione all'asta;
- Partecipazione all'asta con l'assistenza di professionisti seri e competenti;
- Garanzia di assistenza fino alla consegna dell'immobile;
- Supporto, con l'ausilio di specialisti del settore, nell'ottenimento di mutuo o finanziamento se necessario.
Siamo un team di professionisti in grado di fornire la migliore assistenza, studiando con il cliente la giusta strategia finalizzata all'aggiudicazione.
La cura del cliente è la nostra priorità!
La strada per la casa dei tuoi sogni passa da noi...
Contattaci per avere maggiori informazioni sull'immobile e su come partecipare all'asta in totale sicurezza.
Oneika – Aste Immobiliari - Mob. 344.6533655 - se
21923RM.020426
INDIRIZZO
Via Tommaso da Celano, 18, 00179 Roma
DESCRIZIONE
Appartamento al piano terra, interno 1, composto da ingresso, disimpegno, due camere, cucina, un bagno ed un terrazzo.
ONEIKA – Aste Immobiliari, da oltre 15 anni nel settore delle aste immobiliari, garantisce assistenza specializzata nel campo delle procedure esecutive e delle aste giudiziarie immobiliari.
Lo studio offre:
- Un servizio di assistenza nella ricerca dell'immobile e nell'analisi della documentazione che riguarda la procedura scelta;
- Preparazione dell'istruttoria necessaria alla partecipazione all'asta;
- Partecipazione all'asta con l'assistenza di professionisti seri e competenti;
- Garanzia di assistenza fino alla consegna dell'immobile;
- Supporto, con l'ausilio di specialisti del settore, nell'ottenimento di mutuo o finanziamento se necessario.
Siamo un team di professionisti in grado di fornire la migliore assistenza, studiando con il cliente la giusta strategia finalizzata all'aggiudicazione.
La cura del cliente è la nostra priorità!
La strada per la casa dei tuoi sogni passa da noi...
Contattaci per avere maggiori informazioni sull'immobile e su come partecipare all'asta in totale sicurezza.
Oneika – Aste Immobiliari - Mob. 344.6533655 - se
Contratto Vendita
Asta si
Rif 21923RM.020426
Prezzo € 162.000
Provincia Roma
Comune Roma
Zona Appio Latino
Indirizzo Via Tommaso da Celano 18">
Vani 5
Camere 2
Bagni 1
Classe energetica
Non indicata
Riscaldamento autonomo
Condizioni abitabile
Anno di costruzione 1967
Ascensore si
Cucina abitabile
Consistenze
| Descrizione | Superficie | Sup. comm. |
|---|---|---|
| Principali | ||
| Immobile - piano terra | 55 Mq | 55 Mqc |
| Totale | 55 Mqc | |










Zoom della mappa
Apri con:
Apple Maps
Google Maps
Waze
Apri la mappa
