Vendita
Appartamento a Roma
ROMA (RM)
- ZONA Anagnina
A partire da € 266.250
NUMERO PROCEDURA E DATA ASTA
135119RM.220426
INDIRIZZO
Via Antonimina, 5, 00173 Roma
DESCRIZIONE
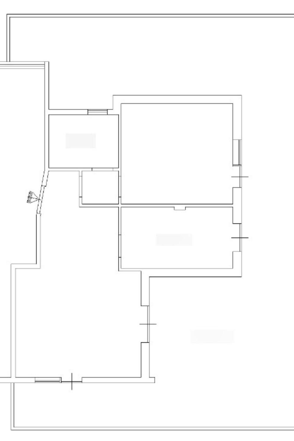
Appartamento al piano secondo, scala C, interno 8, composto da un soggiorno, una cucina, un disimpegno, due camere da letto, due servizi e due balconi. Completa la proprietà un box auto.
ONEIKA – Aste Immobiliari, da oltre 15 anni nel settore delle aste immobiliari, garantisce assistenza specializzata nel campo delle procedure esecutive e delle aste giudiziarie immobiliari.
Lo studio offre:
- Un servizio di assistenza nella ricerca dell'immobile e nell'analisi della documentazione che riguarda la procedura scelta;
- Preparazione dell'istruttoria necessaria alla partecipazione all'asta;
- Partecipazione all'asta con l'assistenza di professionisti seri e competenti;
- Garanzia di assistenza fino alla consegna dell'immobile;
- Supporto, con l'ausilio di specialisti del settore, nell'ottenimento di mutuo o finanziamento se necessario.
Siamo un team di professionisti in grado di fornire la migliore assistenza, studiando con il cliente la giusta strategia finalizzata all'aggiudicazione.
La cura del cliente è la nostra priorità!
La strada per la casa dei tuoi sogni passa da noi...
Contattaci per avere maggiori informazioni sull'immobile e su come partecipare all'asta in totale sicurezza.
Oneika – Aste Immobiliari - Mob. 344.6533655 - se
135119RM.220426
INDIRIZZO
Via Antonimina, 5, 00173 Roma
DESCRIZIONE
Appartamento al piano secondo, scala C, interno 8, composto da un soggiorno, una cucina, un disimpegno, due camere da letto, due servizi e due balconi. Completa la proprietà un box auto.
ONEIKA – Aste Immobiliari, da oltre 15 anni nel settore delle aste immobiliari, garantisce assistenza specializzata nel campo delle procedure esecutive e delle aste giudiziarie immobiliari.
Lo studio offre:
- Un servizio di assistenza nella ricerca dell'immobile e nell'analisi della documentazione che riguarda la procedura scelta;
- Preparazione dell'istruttoria necessaria alla partecipazione all'asta;
- Partecipazione all'asta con l'assistenza di professionisti seri e competenti;
- Garanzia di assistenza fino alla consegna dell'immobile;
- Supporto, con l'ausilio di specialisti del settore, nell'ottenimento di mutuo o finanziamento se necessario.
Siamo un team di professionisti in grado di fornire la migliore assistenza, studiando con il cliente la giusta strategia finalizzata all'aggiudicazione.
La cura del cliente è la nostra priorità!
La strada per la casa dei tuoi sogni passa da noi...
Contattaci per avere maggiori informazioni sull'immobile e su come partecipare all'asta in totale sicurezza.
Oneika – Aste Immobiliari - Mob. 344.6533655 - se
Contratto Vendita
Asta si
Rif 135119RM.220426
Prezzo € 266.250
Provincia Roma
Comune Roma
Zona Anagnina
Indirizzo Via Antonimina 5">
Vani 6
Camere 2
Bagni 2
Classe energetica
Non indicata
Piano 2 / 6
Riscaldamento autonomo
Condizioni abitabile
Anno di costruzione 1990
Ascensore si
Cucina abitabile
Consistenze
| Descrizione | Superficie | Sup. comm. |
|---|---|---|
| Principali | ||
| Immobile - 2° piano | 90 Mq | 90 Mqc |
| Totale | 90 Mqc | |










Zoom della mappa
Apri con:
Apple Maps
Google Maps
Waze
Apri la mappa
