Vendita
Appartamento a Marano di Napoli
MARANO DI NAPOLI (NA)
A partire da € 191.250
NUMERO PROCEDURA E DATA ASTA
12824NAN.3.010426 vari lotti disponibili
INDIRIZZO
Via Umberto Terracini, 23, 80016 Marano di Napoli NA
DESCRIZIONE
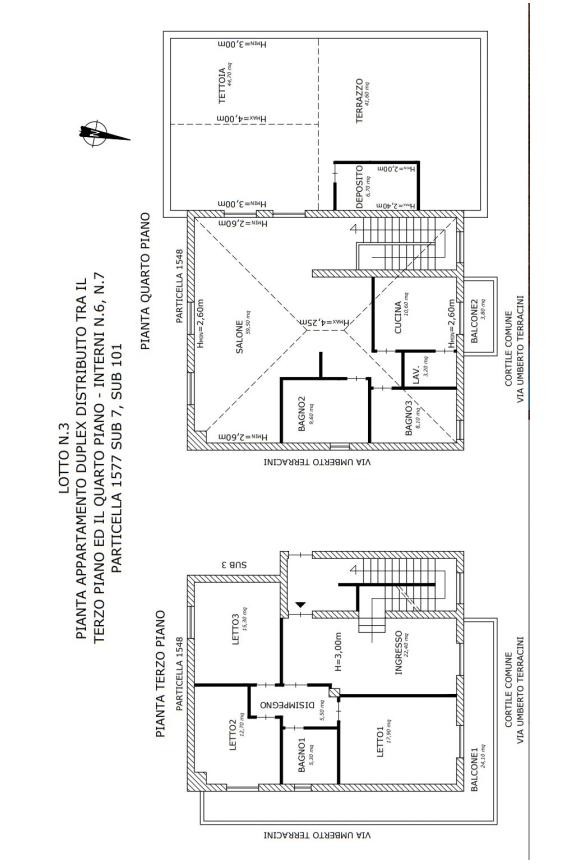
Appartamento duplex distribuito tra il terzo e il quarto piano, composto al terzo piano dalla zona notte suddivisa in un ingresso, un disimpegno, tre camere da letto, un bagno ed un balcone, mentre al quarto piano vi è la zona giorno composta da un salone, una cucina, una lavanderia, due bagni, un balcone, un deposito, una tettoia ed un terrazzo.
ONEIKA – Aste Immobiliari, da oltre 15 anni nel settore delle aste immobiliari, garantisce assistenza specializzata nel campo delle procedure esecutive e delle aste giudiziarie immobiliari.
Lo studio offre:
- Un servizio di assistenza nella ricerca dell'immobile e nell'analisi della documentazione che riguarda la procedura scelta;
- Preparazione dell'istruttoria necessaria alla partecipazione all'asta;
- Partecipazione all'asta con l'assistenza di professionisti seri e competenti;
- Garanzia di assistenza fino alla consegna dell'immobile;
- Supporto, con l'ausilio di specialisti del settore, nell'ottenimento di mutuo o finanziamento se necessario.
Siamo un team di professionisti in grado di fornire la migliore assistenza, studiando con il cliente la giusta strategia finalizzata all'aggiudicazione.
La cura del cliente è la nostra priorità!
La strada per la casa dei tuoi sogni passa da noi...
Contattaci per avere maggiori informazioni sull'immobile e su come partecipare all'asta in totale sicurezza.
Oneika – Aste Immobiliari - Mob. 344.6533655 -AM
12824NAN.3.010426 vari lotti disponibili
INDIRIZZO
Via Umberto Terracini, 23, 80016 Marano di Napoli NA
DESCRIZIONE
Appartamento duplex distribuito tra il terzo e il quarto piano, composto al terzo piano dalla zona notte suddivisa in un ingresso, un disimpegno, tre camere da letto, un bagno ed un balcone, mentre al quarto piano vi è la zona giorno composta da un salone, una cucina, una lavanderia, due bagni, un balcone, un deposito, una tettoia ed un terrazzo.
ONEIKA – Aste Immobiliari, da oltre 15 anni nel settore delle aste immobiliari, garantisce assistenza specializzata nel campo delle procedure esecutive e delle aste giudiziarie immobiliari.
Lo studio offre:
- Un servizio di assistenza nella ricerca dell'immobile e nell'analisi della documentazione che riguarda la procedura scelta;
- Preparazione dell'istruttoria necessaria alla partecipazione all'asta;
- Partecipazione all'asta con l'assistenza di professionisti seri e competenti;
- Garanzia di assistenza fino alla consegna dell'immobile;
- Supporto, con l'ausilio di specialisti del settore, nell'ottenimento di mutuo o finanziamento se necessario.
Siamo un team di professionisti in grado di fornire la migliore assistenza, studiando con il cliente la giusta strategia finalizzata all'aggiudicazione.
La cura del cliente è la nostra priorità!
La strada per la casa dei tuoi sogni passa da noi...
Contattaci per avere maggiori informazioni sull'immobile e su come partecipare all'asta in totale sicurezza.
Oneika – Aste Immobiliari - Mob. 344.6533655 -AM
Contratto Vendita
Asta si
Rif 12824NAN.3.010426 vari lotti disponibili
Prezzo € 191.250
Provincia Napoli
Comune Marano di Napoli
Indirizzo Via Umberto Terracini 23A">
Vani 8
Camere 3
Bagni 3
Classe energetica
Non indicata
Piano 3 / 4
Riscaldamento autonomo
Condizioni abitabile
Spese condominiali € 1
Anno di costruzione 1967
Cucina abitabile
Consistenze
| Descrizione | Superficie | Sup. comm. |
|---|---|---|
| Principali | ||
| Immobile - 3° piano | 170 Mq | 170 Mqc |
| Totale | 170 Mqc | |













Zoom della mappa
Apri con:
Apple Maps
Google Maps
Waze
Apri la mappa
