Vendita
Appartamento a Calangianus
CALANGIANUS (SS)
A partire da € 137.580
NUMERO PROCEDURA E DATA ASTA
5318TEM.2.030326 vari lotti disponibili
INDIRIZZO
Via Corsica, 07023 Calangianus Sassari
DESCRIZIONE
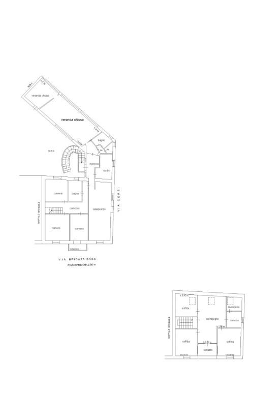
Abitazione piano terra, primo, secondo. Al paino terra locali sgombero, garage. Al piano primo soggiorno con angolo cottura, tre camere, studio, due bagni, terrazza. Al piano secondo 3 vano soffitta un bagno terrazza.
ONEIKA – Aste Immobiliari, da oltre 15 anni nel settore delle aste immobiliari, garantisce assistenza specializzata nel campo delle procedure esecutive e delle aste giudiziarie immobiliari.
Lo studio offre:
- Un servizio di assistenza nella ricerca dell'immobile e nell'analisi della documentazione che riguarda la procedura scelta;
- Preparazione dell'istruttoria necessaria alla partecipazione all'asta;
- Partecipazione all'asta con l'assistenza di professionisti seri e competenti;
- Garanzia di assistenza fino alla consegna dell'immobile;
- Supporto, con l'ausilio di specialisti del settore, nell'ottenimento di mutuo o finanziamento se necessario.
Siamo un team di professionisti in grado di fornire la migliore assistenza, studiando con il cliente la giusta strategia finalizzata all'aggiudicazione.
La cura del cliente è la nostra priorità!
La strada per la casa dei tuoi sogni passa da noi...
Contattaci per avere maggiori informazioni sull'immobile e su come partecipare all'asta in totale sicurezza.
Oneika – Aste Immobiliari - Mob. 344.6533655 -AM
5318TEM.2.030326 vari lotti disponibili
INDIRIZZO
Via Corsica, 07023 Calangianus Sassari
DESCRIZIONE
Abitazione piano terra, primo, secondo. Al paino terra locali sgombero, garage. Al piano primo soggiorno con angolo cottura, tre camere, studio, due bagni, terrazza. Al piano secondo 3 vano soffitta un bagno terrazza.
ONEIKA – Aste Immobiliari, da oltre 15 anni nel settore delle aste immobiliari, garantisce assistenza specializzata nel campo delle procedure esecutive e delle aste giudiziarie immobiliari.
Lo studio offre:
- Un servizio di assistenza nella ricerca dell'immobile e nell'analisi della documentazione che riguarda la procedura scelta;
- Preparazione dell'istruttoria necessaria alla partecipazione all'asta;
- Partecipazione all'asta con l'assistenza di professionisti seri e competenti;
- Garanzia di assistenza fino alla consegna dell'immobile;
- Supporto, con l'ausilio di specialisti del settore, nell'ottenimento di mutuo o finanziamento se necessario.
Siamo un team di professionisti in grado di fornire la migliore assistenza, studiando con il cliente la giusta strategia finalizzata all'aggiudicazione.
La cura del cliente è la nostra priorità!
La strada per la casa dei tuoi sogni passa da noi...
Contattaci per avere maggiori informazioni sull'immobile e su come partecipare all'asta in totale sicurezza.
Oneika – Aste Immobiliari - Mob. 344.6533655 -AM
Contratto Vendita
Asta si
Rif 5318TEM.2.030326 vari lotti disponibili
Prezzo € 137.580
Provincia Sassari
Comune Calangianus
Indirizzo Via Corsica">
Vani 12
Camere 6
Bagni 3
Classe energetica
Non indicata
Riscaldamento autonomo
Condizioni abitabile
Spese condominiali € 1
Anno di costruzione 1967
Cucina abitabile
Consistenze
| Descrizione | Superficie | Sup. comm. |
|---|---|---|
| Principali | ||
| Immobile - piano terra | 278 Mq | 278 Mqc |
| Totale | 278 Mqc | |










Zoom della mappa
Apri con:
Apple Maps
Google Maps
Waze
Apri la mappa
