Vendita
Appartamento a Napoli
NAPOLI (NA)
- ZONA Tribunali
A partire da € 147.750
NUMERO PROCEDURA E DATA ASTA
52723NA.3.240326 vari lotti disponibili
INDIRIZZO
Via Carriera Grande, 32, 80139 Napoli NA
DESCRIZIONE
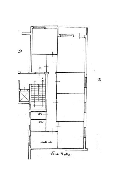
Appartamento piano 3, composto da 7,5 vani ed accessori. L'immobile non è dotato di aree scoperte, benché vi sia terrazzo adiacente allo stabile, a cui è possibile accedere in via esclusiva, con una superficie commerciale di circa mq 135,00.
ONEIKA – Aste Immobiliari, da oltre 15 anni nel settore delle aste immobiliari, garantisce assistenza specializzata nel campo delle procedure esecutive e delle aste giudiziarie immobiliari.
Lo studio offre:
- Un servizio di assistenza nella ricerca dell'immobile e nell'analisi della documentazione che riguarda la procedura scelta;
- Preparazione dell'istruttoria necessaria alla partecipazione all'asta;
- Partecipazione all'asta con l'assistenza di professionisti seri e competenti;
- Garanzia di assistenza fino alla consegna dell'immobile;
- Supporto, con l'ausilio di specialisti del settore, nell'ottenimento di mutuo o finanziamento se necessario.
Siamo un team di professionisti in grado di fornire la migliore assistenza, studiando con il cliente la giusta strategia finalizzata all'aggiudicazione.
La cura del cliente è la nostra priorità!
La strada per la casa dei tuoi sogni passa da noi...
Contattaci per avere maggiori informazioni sull'immobile e su come partecipare all'asta in totale sicurezza.
Oneika – Aste Immobiliari - Mob. 344.6533655 -AM
52723NA.3.240326 vari lotti disponibili
INDIRIZZO
Via Carriera Grande, 32, 80139 Napoli NA
DESCRIZIONE
Appartamento piano 3, composto da 7,5 vani ed accessori. L'immobile non è dotato di aree scoperte, benché vi sia terrazzo adiacente allo stabile, a cui è possibile accedere in via esclusiva, con una superficie commerciale di circa mq 135,00.
ONEIKA – Aste Immobiliari, da oltre 15 anni nel settore delle aste immobiliari, garantisce assistenza specializzata nel campo delle procedure esecutive e delle aste giudiziarie immobiliari.
Lo studio offre:
- Un servizio di assistenza nella ricerca dell'immobile e nell'analisi della documentazione che riguarda la procedura scelta;
- Preparazione dell'istruttoria necessaria alla partecipazione all'asta;
- Partecipazione all'asta con l'assistenza di professionisti seri e competenti;
- Garanzia di assistenza fino alla consegna dell'immobile;
- Supporto, con l'ausilio di specialisti del settore, nell'ottenimento di mutuo o finanziamento se necessario.
Siamo un team di professionisti in grado di fornire la migliore assistenza, studiando con il cliente la giusta strategia finalizzata all'aggiudicazione.
La cura del cliente è la nostra priorità!
La strada per la casa dei tuoi sogni passa da noi...
Contattaci per avere maggiori informazioni sull'immobile e su come partecipare all'asta in totale sicurezza.
Oneika – Aste Immobiliari - Mob. 344.6533655 -AM
Contratto Vendita
Asta si
Rif 52723NA.3.240326 vari lotti disponibili
Prezzo € 147.750
Provincia Napoli
Comune Napoli
Zona Tribunali
Indirizzo Via Carriera Grande 32">
Vani 7
Camere 3
Bagni 2
Classe energetica
Non indicata
Piano 3 / 7
Riscaldamento autonomo
Condizioni abitabile
Spese condominiali € 1
Anno di costruzione 1967
Ascensore si
Cucina abitabile
Consistenze
| Descrizione | Superficie | Sup. comm. |
|---|---|---|
| Principali | ||
| Immobile - 3° piano | 135 Mq | 135 Mqc |
| Totale | 135 Mqc | |










Zoom della mappa
Apri con:
Apple Maps
Google Maps
Waze
Apri la mappa
