Vendita
Appartamento a Maddaloni
MADDALONI (CE)
A partire da € 279.429
NUMERO PROCEDURA E DATA ASTA
9424SAN.040326
INDIRIZZO
Via S. Eustachio, 203, 81024 Maddaloni CE
DESCRIZIONE
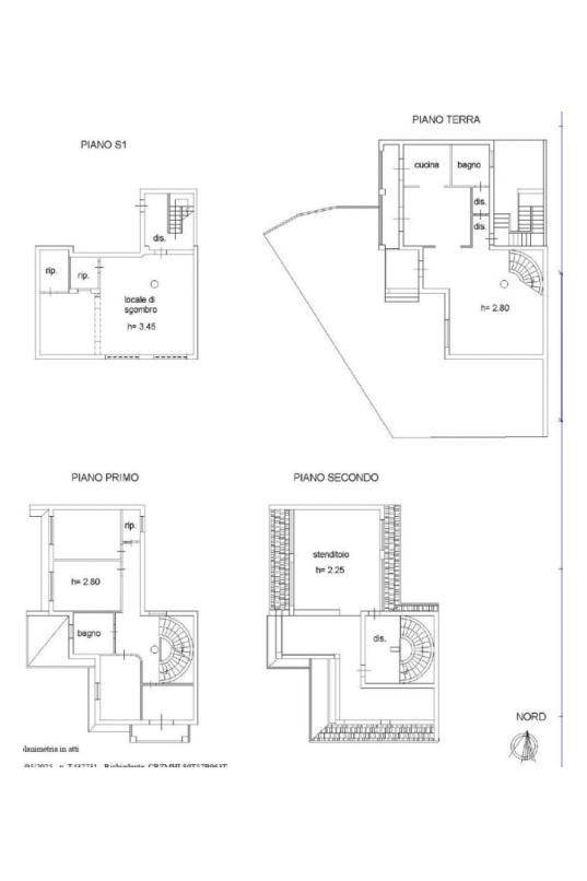
La villa è composta da quattro piani oltre terrazzo. Il piano seminterrato presenta cucina, bagno e deposito. Il piano terra (rialzato) presenta un cortile, un soggiorno, due disimpegni, un bagno, una sala da pranzo, un balcone. Il piano primo presenta quattro camere da letto, un bagno e un balcone. Il secondo piano presenta una scala, un bagno. Il Garage e' posto al piano seminterrato.
ONEIKA – Aste Immobiliari, da oltre 15 anni nel settore delle aste immobiliari, garantisce assistenza specializzata nel campo delle procedure esecutive e delle aste giudiziarie immobiliari.
Lo studio offre:
- Un servizio di assistenza nella ricerca dell'immobile e nell'analisi della documentazione che riguarda la procedura scelta;
- Preparazione dell'istruttoria necessaria alla partecipazione all'asta;
- Partecipazione all'asta con l'assistenza di professionisti seri e competenti;
- Garanzia di assistenza fino alla consegna dell'immobile;
- Supporto, con l'ausilio di specialisti del settore, nell'ottenimento di mutuo o finanziamento se necessario.
Siamo un team di professionisti in grado di fornire la migliore assistenza, studiando con il cliente la giusta strategia finalizzata all'aggiudicazione.
La cura del cliente è la nostra priorità!
La strada per la casa dei tuoi sogni passa da noi...
Contattaci per avere maggiori informazioni sull'immobile e su come partecipare all'asta in totale sicurezza.
Oneika – Aste Immobiliari - Mob. 344.6533655 -AM
9424SAN.040326
INDIRIZZO
Via S. Eustachio, 203, 81024 Maddaloni CE
DESCRIZIONE
La villa è composta da quattro piani oltre terrazzo. Il piano seminterrato presenta cucina, bagno e deposito. Il piano terra (rialzato) presenta un cortile, un soggiorno, due disimpegni, un bagno, una sala da pranzo, un balcone. Il piano primo presenta quattro camere da letto, un bagno e un balcone. Il secondo piano presenta una scala, un bagno. Il Garage e' posto al piano seminterrato.
ONEIKA – Aste Immobiliari, da oltre 15 anni nel settore delle aste immobiliari, garantisce assistenza specializzata nel campo delle procedure esecutive e delle aste giudiziarie immobiliari.
Lo studio offre:
- Un servizio di assistenza nella ricerca dell'immobile e nell'analisi della documentazione che riguarda la procedura scelta;
- Preparazione dell'istruttoria necessaria alla partecipazione all'asta;
- Partecipazione all'asta con l'assistenza di professionisti seri e competenti;
- Garanzia di assistenza fino alla consegna dell'immobile;
- Supporto, con l'ausilio di specialisti del settore, nell'ottenimento di mutuo o finanziamento se necessario.
Siamo un team di professionisti in grado di fornire la migliore assistenza, studiando con il cliente la giusta strategia finalizzata all'aggiudicazione.
La cura del cliente è la nostra priorità!
La strada per la casa dei tuoi sogni passa da noi...
Contattaci per avere maggiori informazioni sull'immobile e su come partecipare all'asta in totale sicurezza.
Oneika – Aste Immobiliari - Mob. 344.6533655 -AM
Contratto Vendita
Asta si
Rif 9424SAN.040326
Prezzo € 279.429
Provincia Caserta
Comune Maddaloni
Indirizzo Via Sant'Eustachio 203">
Vani 12
Camere 5
Bagni 4
Classe energetica
Non indicata
Riscaldamento autonomo
Condizioni abitabile
Spese condominiali € 1
Anno di costruzione 1967
Cucina abitabile
Consistenze
| Descrizione | Superficie | Sup. comm. |
|---|---|---|
| Principali | ||
| Immobile - piano terra | 298 Mq | 298 Mqc |
| Totale | 298 Mqc | |











Zoom della mappa
Apri con:
Apple Maps
Google Maps
Waze
Apri la mappa
