Vendita
Appartamento a Napoli
NAPOLI (NA)
- ZONA Stella - Materdei
A partire da € 50.250
NUMERO PROCEDURA E DATA ASTA
41024NA.2.310326 vari lotti disponibili
INDIRIZZO
Via Sanità n. 122, 80136 Napoli
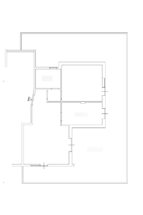
DESCRIZIONE
Piano terzo. L'immobile si compone di 3 vani principali, un disimpegno d'ingresso e un bagno.
ONEIKA – Aste Immobiliari, da oltre 15 anni nel settore delle aste immobiliari, garantisce assistenza specializzata nel campo delle procedure esecutive e delle aste giudiziarie immobiliari.
Lo studio offre:
- Un servizio di assistenza nella ricerca dell'immobile e nell'analisi della documentazione che riguarda la procedura scelta;
- Preparazione dell'istruttoria necessaria alla partecipazione all'asta;
- Partecipazione all'asta con l'assistenza di professionisti seri e competenti;
- Garanzia di assistenza fino alla consegna dell'immobile;
- Supporto, con l'ausilio di specialisti del settore, nell'ottenimento di mutuo o finanziamento se necessario.
Siamo un team di professionisti in grado di fornire la migliore assistenza, studiando con il cliente la giusta strategia finalizzata all'aggiudicazione.
La cura del cliente è la nostra priorità!
La strada per la casa dei tuoi sogni passa da noi...
Contattaci per avere maggiori informazioni sull'immobile e su come partecipare all'asta in totale sicurezza.
Oneika – Aste Immobiliari - Mob. 344.6533655 -AM
41024NA.2.310326 vari lotti disponibili
INDIRIZZO
Via Sanità n. 122, 80136 Napoli
DESCRIZIONE
Piano terzo. L'immobile si compone di 3 vani principali, un disimpegno d'ingresso e un bagno.
ONEIKA – Aste Immobiliari, da oltre 15 anni nel settore delle aste immobiliari, garantisce assistenza specializzata nel campo delle procedure esecutive e delle aste giudiziarie immobiliari.
Lo studio offre:
- Un servizio di assistenza nella ricerca dell'immobile e nell'analisi della documentazione che riguarda la procedura scelta;
- Preparazione dell'istruttoria necessaria alla partecipazione all'asta;
- Partecipazione all'asta con l'assistenza di professionisti seri e competenti;
- Garanzia di assistenza fino alla consegna dell'immobile;
- Supporto, con l'ausilio di specialisti del settore, nell'ottenimento di mutuo o finanziamento se necessario.
Siamo un team di professionisti in grado di fornire la migliore assistenza, studiando con il cliente la giusta strategia finalizzata all'aggiudicazione.
La cura del cliente è la nostra priorità!
La strada per la casa dei tuoi sogni passa da noi...
Contattaci per avere maggiori informazioni sull'immobile e su come partecipare all'asta in totale sicurezza.
Oneika – Aste Immobiliari - Mob. 344.6533655 -AM
Contratto Vendita
Asta si
Rif 41024NA.2.310326 vari lotti disponibili
Prezzo € 50.250
Provincia Napoli
Comune Napoli
Zona Stella - Materdei
Indirizzo Via della Sanità 122">
Vani 3
Camere 1
Bagni 1
Classe energetica
Non indicata
Piano 3 / 4
Riscaldamento autonomo
Condizioni abitabile
Spese condominiali € 1
Anno di costruzione 1967
Cucina angolo cottura
Consistenze
| Descrizione | Superficie | Sup. comm. |
|---|---|---|
| Principali | ||
| Immobile - 3° piano | 126 Mq | 126 Mqc |
| Totale | 126 Mqc | |














Zoom della mappa
Apri con:
Apple Maps
Google Maps
Waze
Apri la mappa
