Vendita
Villa plurifamiliare a Anzio
ANZIO (RM)
- ZONA Villaggio Giornalisti - Poggio
A partire da € 124.500
NUMERO PROCEDURA E DATA ASTA
19724VL.170226
INDIRIZZO
Via di Valle Schioia, 186, 00042 Anzio
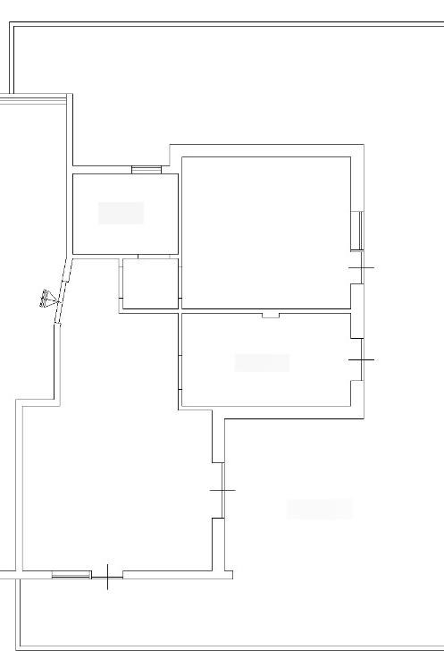
DESCRIZIONE
Porzione di villetta bifamiliare distribuita su tre livelli. Piano terra composto da soggiorno/pranzo, cucina, bagno e due terrazzi. Piano primo composto da tre camere, bagno e due balconi. Seminterrato composto da cantina, ripostiglio, magazzino e lavanderia. Completa la proprietà un giardino privato.
ONEIKA – Aste Immobiliari, da oltre 15 anni nel settore delle aste immobiliari, garantisce assistenza specializzata nel campo delle procedure esecutive e delle aste giudiziarie immobiliari.
Lo studio offre:
- Un servizio di assistenza nella ricerca dell'immobile e nell'analisi della documentazione che riguarda la procedura scelta;
- Preparazione dell'istruttoria necessaria alla partecipazione all'asta;
- Partecipazione all'asta con l'assistenza di professionisti seri e competenti;
- Garanzia di assistenza fino alla consegna dell'immobile;
- Supporto, con l'ausilio di specialisti del settore, nell'ottenimento di mutuo o finanziamento se necessario.
Siamo un team di professionisti in grado di fornire la migliore assistenza, studiando con il cliente la giusta strategia finalizzata all'aggiudicazione.
La cura del cliente è la nostra priorità!
La strada per la casa dei tuoi sogni passa da noi...
Contattaci per avere maggiori informazioni sull'immobile e su come partecipare all'asta in totale sicurezza.
Oneika – Aste Immobiliari - Mob. 344.6533655 (SI)
19724VL.170226
INDIRIZZO
Via di Valle Schioia, 186, 00042 Anzio
DESCRIZIONE
Porzione di villetta bifamiliare distribuita su tre livelli. Piano terra composto da soggiorno/pranzo, cucina, bagno e due terrazzi. Piano primo composto da tre camere, bagno e due balconi. Seminterrato composto da cantina, ripostiglio, magazzino e lavanderia. Completa la proprietà un giardino privato.
ONEIKA – Aste Immobiliari, da oltre 15 anni nel settore delle aste immobiliari, garantisce assistenza specializzata nel campo delle procedure esecutive e delle aste giudiziarie immobiliari.
Lo studio offre:
- Un servizio di assistenza nella ricerca dell'immobile e nell'analisi della documentazione che riguarda la procedura scelta;
- Preparazione dell'istruttoria necessaria alla partecipazione all'asta;
- Partecipazione all'asta con l'assistenza di professionisti seri e competenti;
- Garanzia di assistenza fino alla consegna dell'immobile;
- Supporto, con l'ausilio di specialisti del settore, nell'ottenimento di mutuo o finanziamento se necessario.
Siamo un team di professionisti in grado di fornire la migliore assistenza, studiando con il cliente la giusta strategia finalizzata all'aggiudicazione.
La cura del cliente è la nostra priorità!
La strada per la casa dei tuoi sogni passa da noi...
Contattaci per avere maggiori informazioni sull'immobile e su come partecipare all'asta in totale sicurezza.
Oneika – Aste Immobiliari - Mob. 344.6533655 (SI)
Contratto Vendita
Asta si
Rif 19724VL.170226
Prezzo € 124.500
Provincia Roma
Comune Anzio
Zona Villaggio Giornalisti - Poggio
Indirizzo Viale di Valle Schioia 186">
Vani 7
Camere 3
Bagni 2
Classe energetica
Non indicata
Riscaldamento autonomo
Condizioni abitabile
Anno di costruzione 1970
Cucina abitabile
Consistenze
| Descrizione | Superficie | Sup. comm. |
|---|---|---|
| Principali | ||
| Immobile - piano terra | 168 Mq | 168 Mqc |
| Totale | 168 Mqc | |















Zoom della mappa
Apri con:
Apple Maps
Google Maps
Waze
Apri la mappa
