Vendita
Appartamento a Torino
TORINO (TO)
- ZONA Pozzo Strada
A partire da € 34.500
NUMERO PROCEDURA E DATA ASTA
722TO.240326
INDIRIZZO
Via Beaulard, 42 bis, 10139 Torino TO
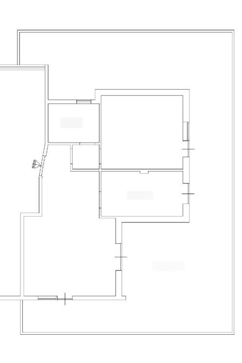
DESCRIZIONE
Alloggio al piano quarto (quinto fuori terra), privo di ascensore, composto di ingresso, cucina, 3 camere e servizio, con due balconi lato cortile e due balconi lato Via Beaulard, al piano cantinato locale cantina.
ONEIKA – Aste Immobiliari, da oltre 15 anni nel settore delle aste immobiliari, garantisce assistenza specializzata nel campo delle procedure esecutive e delle aste giudiziarie immobiliari.
Lo studio offre:
- Un servizio di assistenza nella ricerca dell'immobile e nell'analisi della documentazione che riguarda la procedura scelta;
- Preparazione dell'istruttoria necessaria alla partecipazione all'asta;
- Partecipazione all'asta con l'assistenza di professionisti seri e competenti;
- Garanzia di assistenza fino alla consegna dell'immobile;
- Supporto, con l'ausilio di specialisti del settore, nell'ottenimento di mutuo o finanziamento se necessario.
Siamo un team di professionisti in grado di fornire la migliore assistenza, studiando con il cliente la giusta strategia finalizzata all'aggiudicazione.
La cura del cliente è la nostra priorità!
La strada per la casa dei tuoi sogni passa da noi...
Contattaci per avere maggiori informazioni sull'immobile e su come partecipare all'asta in totale sicurezza.
Oneika – Aste Immobiliari - Mob. 344.6533655 -AM
722TO.240326
INDIRIZZO
Via Beaulard, 42 bis, 10139 Torino TO
DESCRIZIONE
Alloggio al piano quarto (quinto fuori terra), privo di ascensore, composto di ingresso, cucina, 3 camere e servizio, con due balconi lato cortile e due balconi lato Via Beaulard, al piano cantinato locale cantina.
ONEIKA – Aste Immobiliari, da oltre 15 anni nel settore delle aste immobiliari, garantisce assistenza specializzata nel campo delle procedure esecutive e delle aste giudiziarie immobiliari.
Lo studio offre:
- Un servizio di assistenza nella ricerca dell'immobile e nell'analisi della documentazione che riguarda la procedura scelta;
- Preparazione dell'istruttoria necessaria alla partecipazione all'asta;
- Partecipazione all'asta con l'assistenza di professionisti seri e competenti;
- Garanzia di assistenza fino alla consegna dell'immobile;
- Supporto, con l'ausilio di specialisti del settore, nell'ottenimento di mutuo o finanziamento se necessario.
Siamo un team di professionisti in grado di fornire la migliore assistenza, studiando con il cliente la giusta strategia finalizzata all'aggiudicazione.
La cura del cliente è la nostra priorità!
La strada per la casa dei tuoi sogni passa da noi...
Contattaci per avere maggiori informazioni sull'immobile e su come partecipare all'asta in totale sicurezza.
Oneika – Aste Immobiliari - Mob. 344.6533655 -AM
Contratto Vendita
Asta si
Rif 722TO.240326
Prezzo € 34.500
Provincia Torino
Comune Torino
Zona Pozzo Strada
Indirizzo Via Beaulard 42">
Vani 5
Camere 3
Bagni 1
Classe energetica
Non indicata
Piano 4 / 4
Riscaldamento autonomo
Condizioni abitabile
Spese condominiali € 1
Anno di costruzione 1967
Ascensore si
Cucina abitabile
Consistenze
| Descrizione | Superficie | Sup. comm. |
|---|---|---|
| Principali | ||
| Immobile - 4° piano | 82 Mq | 82 Mqc |
| Totale | 82 Mqc | |










Zoom della mappa
Apri con:
Apple Maps
Google Maps
Waze
Apri la mappa
