Vendita
Appartamento a Bessude
BESSUDE (SS)
A partire da € 38.685
NUMERO PROCEDURA E DATA ASTA
6423SS.050226
INDIRIZZO
Via Padre Carboni, 1, 07040 Bessude SS
DESCRIZIONE
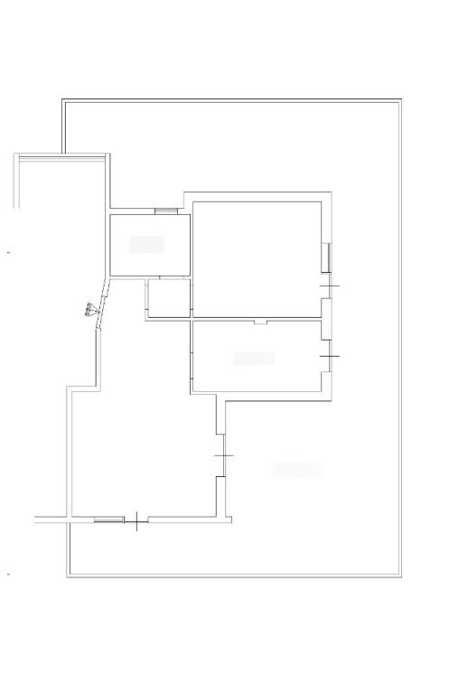
Proprietà' di 3 beni: bene 1: appartamento p.t.,con un piccolo cortile privato, 7 vani, sup.cat.tot. 151 mq. (e.a.s. 141 mq.); bene 2: garage; bene 3: cantina.
ONEIKA – Aste Immobiliari, da oltre 15 anni nel settore delle aste immobiliari, garantisce assistenza specializzata nel campo delle procedure esecutive e delle aste giudiziarie immobiliari.
Lo studio offre:
- Un servizio di assistenza nella ricerca dell'immobile e nell'analisi della documentazione che riguarda la procedura scelta;
- Preparazione dell'istruttoria necessaria alla partecipazione all'asta;
- Partecipazione all'asta con l'assistenza di professionisti seri e competenti;
- Garanzia di assistenza fino alla consegna dell'immobile;
- Supporto, con l'ausilio di specialisti del settore, nell'ottenimento di mutuo o finanziamento se necessario.
Siamo un team di professionisti in grado di fornire la migliore assistenza, studiando con il cliente la giusta strategia finalizzata all'aggiudicazione.
La cura del cliente è la nostra priorità!
La strada per la casa dei tuoi sogni passa da noi...
Contattaci per avere maggiori informazioni sull'immobile e su come partecipare all'asta in totale sicurezza.
Oneika – Aste Immobiliari - Mob. 344.6533655 - AM
6423SS.050226
INDIRIZZO
Via Padre Carboni, 1, 07040 Bessude SS
DESCRIZIONE
Proprietà' di 3 beni: bene 1: appartamento p.t.,con un piccolo cortile privato, 7 vani, sup.cat.tot. 151 mq. (e.a.s. 141 mq.); bene 2: garage; bene 3: cantina.
ONEIKA – Aste Immobiliari, da oltre 15 anni nel settore delle aste immobiliari, garantisce assistenza specializzata nel campo delle procedure esecutive e delle aste giudiziarie immobiliari.
Lo studio offre:
- Un servizio di assistenza nella ricerca dell'immobile e nell'analisi della documentazione che riguarda la procedura scelta;
- Preparazione dell'istruttoria necessaria alla partecipazione all'asta;
- Partecipazione all'asta con l'assistenza di professionisti seri e competenti;
- Garanzia di assistenza fino alla consegna dell'immobile;
- Supporto, con l'ausilio di specialisti del settore, nell'ottenimento di mutuo o finanziamento se necessario.
Siamo un team di professionisti in grado di fornire la migliore assistenza, studiando con il cliente la giusta strategia finalizzata all'aggiudicazione.
La cura del cliente è la nostra priorità!
La strada per la casa dei tuoi sogni passa da noi...
Contattaci per avere maggiori informazioni sull'immobile e su come partecipare all'asta in totale sicurezza.
Oneika – Aste Immobiliari - Mob. 344.6533655 - AM
Contratto Vendita
Asta si
Rif 6423SS.050226
Prezzo € 38.685
Provincia Sassari
Comune Bessude
Indirizzo Via a. Carboni 1">
Vani 7
Camere 3
Bagni 2
Classe energetica
Non indicata
Riscaldamento autonomo
Condizioni abitabile
Spese condominiali € 1
Anno di costruzione 1967
Cucina abitabile
Consistenze
| Descrizione | Superficie | Sup. comm. |
|---|---|---|
| Principali | ||
| Immobile - piano terra | 141 Mq | 141 Mqc |
| Totale | 141 Mqc | |











Zoom della mappa
Apri con:
Apple Maps
Google Maps
Waze
Apri la mappa
