Vendita
Villa a Pecetto Torinese
PECETTO TORINESE (TO)
A partire da € 738.000
NUMERO PROCEDURA E DATA ASTA
7622TO.170226
INDIRIZZO
Str. Eremo, 91, 10020 PECETTO TORINESE TORINO
DESCRIZIONE
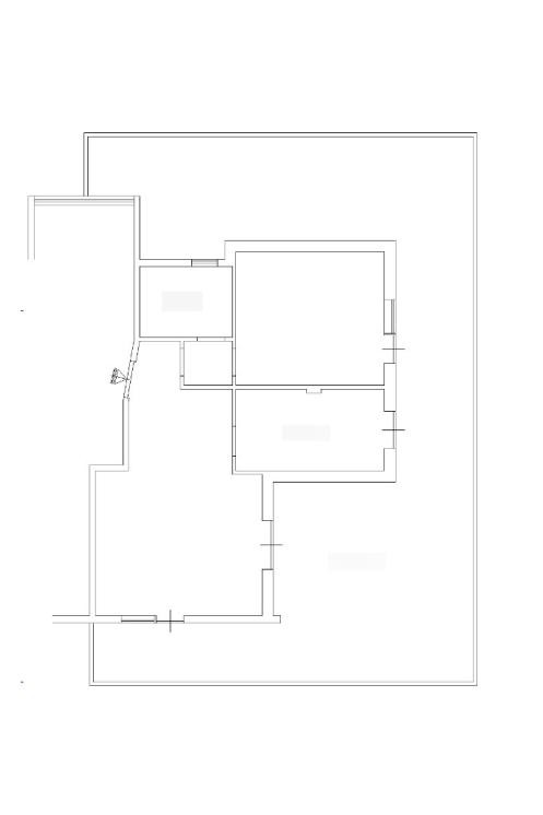
Fabbricato unifamiliare a un piano fuori terra oltre mansardato e interrato collegati tra loro da scala interna
- al piano terreno (1° f.t.): ingresso, salone con caminetto, soggiorno, cucina, tre camere, due bagní, un
servizio igienico, cabina armadi, disimpegni e patio vetrato destinato a giardino;
.- al piano primo (2° f.t.): mansarda con terrazzo, tre bagni (uno abusivamente realizzato), disimpegni e
sottotetto non abitabile;
.- al piano interrato: tavernetta con caminetto e angolo bar, servizio igienico disimpegnato, ripostiglio
sottoscala, lavanderia, deposito, cantina, locali tecnici per autoclave, centrale termica e intercapedine;
.- al piano interrato autorimessa privata con accesso carraio esterno, collegata con la villa da porta di
comunicazione interna con l'adiacente locale deposito;
ONEIKA – Aste Immobiliari, da oltre 15 anni nel settore delle aste immobiliari, garantisce assistenza specializzata nel campo delle procedure esecutive e delle aste giudiziarie immobiliari.
Lo studio offre:
- Un servizio di assistenza nella ricerca dell'immobile e nell'analisi della documentazione che riguarda la procedura scelta;
- Preparazione dell'istruttoria necessaria alla partecipazione all'asta;
- Partecipazione all'asta con l'assistenza di professionisti seri e competenti;
- Garanzia di assistenza fino alla consegna dell'immobile;
- Supporto, con l'ausilio di specialisti del settore, nell'ottenimento di mutuo o finanziamento se necessario.
Siamo un team di professionisti in grado di fornire la migliore assistenza, studiando con il cliente la giusta strategia finalizzata all'aggiudicazione.
La cura del cliente è la nostra priorità!
La strada per la casa dei tuoi sogni passa da noi...
Contattaci per avere maggiori informazioni sull'immobile e su come partecipare all'asta in totale sicurezza.
Oneika – Aste Immobiliari - Mob. 344.6533655 -AM
7622TO.170226
INDIRIZZO
Str. Eremo, 91, 10020 PECETTO TORINESE TORINO
DESCRIZIONE
Fabbricato unifamiliare a un piano fuori terra oltre mansardato e interrato collegati tra loro da scala interna
- al piano terreno (1° f.t.): ingresso, salone con caminetto, soggiorno, cucina, tre camere, due bagní, un
servizio igienico, cabina armadi, disimpegni e patio vetrato destinato a giardino;
.- al piano primo (2° f.t.): mansarda con terrazzo, tre bagni (uno abusivamente realizzato), disimpegni e
sottotetto non abitabile;
.- al piano interrato: tavernetta con caminetto e angolo bar, servizio igienico disimpegnato, ripostiglio
sottoscala, lavanderia, deposito, cantina, locali tecnici per autoclave, centrale termica e intercapedine;
.- al piano interrato autorimessa privata con accesso carraio esterno, collegata con la villa da porta di
comunicazione interna con l'adiacente locale deposito;
ONEIKA – Aste Immobiliari, da oltre 15 anni nel settore delle aste immobiliari, garantisce assistenza specializzata nel campo delle procedure esecutive e delle aste giudiziarie immobiliari.
Lo studio offre:
- Un servizio di assistenza nella ricerca dell'immobile e nell'analisi della documentazione che riguarda la procedura scelta;
- Preparazione dell'istruttoria necessaria alla partecipazione all'asta;
- Partecipazione all'asta con l'assistenza di professionisti seri e competenti;
- Garanzia di assistenza fino alla consegna dell'immobile;
- Supporto, con l'ausilio di specialisti del settore, nell'ottenimento di mutuo o finanziamento se necessario.
Siamo un team di professionisti in grado di fornire la migliore assistenza, studiando con il cliente la giusta strategia finalizzata all'aggiudicazione.
La cura del cliente è la nostra priorità!
La strada per la casa dei tuoi sogni passa da noi...
Contattaci per avere maggiori informazioni sull'immobile e su come partecipare all'asta in totale sicurezza.
Oneika – Aste Immobiliari - Mob. 344.6533655 -AM
Contratto Vendita
Asta si
Rif 7622TO.170226
Prezzo € 738.000
Provincia Torino
Comune Pecetto Torinese
Indirizzo Strada Eremo 91">
Vani 20
Camere 6
Bagni 4
Classe energetica
Non indicata
Riscaldamento autonomo
Condizioni abitabile
Spese condominiali € 1
Anno di costruzione 1967
Cucina abitabile
Consistenze
| Descrizione | Superficie | Sup. comm. |
|---|---|---|
| Principali | ||
| Immobile - piano terra | 450 Mq | 450 Mqc |
| Totale | 450 Mqc | |














Zoom della mappa
Apri con:
Apple Maps
Google Maps
Waze
Apri la mappa
