Vendita
Appartamento a Roma
ROMA (RM)
- ZONA Mezzocammino
A partire da € 282.000
NUMERO PROCEDURA E DATA ASTA
19424RM.5.110326 vari lotti disponibili
INDIRIZZO
Viale Gianluigi Bonelli, 543, 00127 Roma
DESCRIZIONE
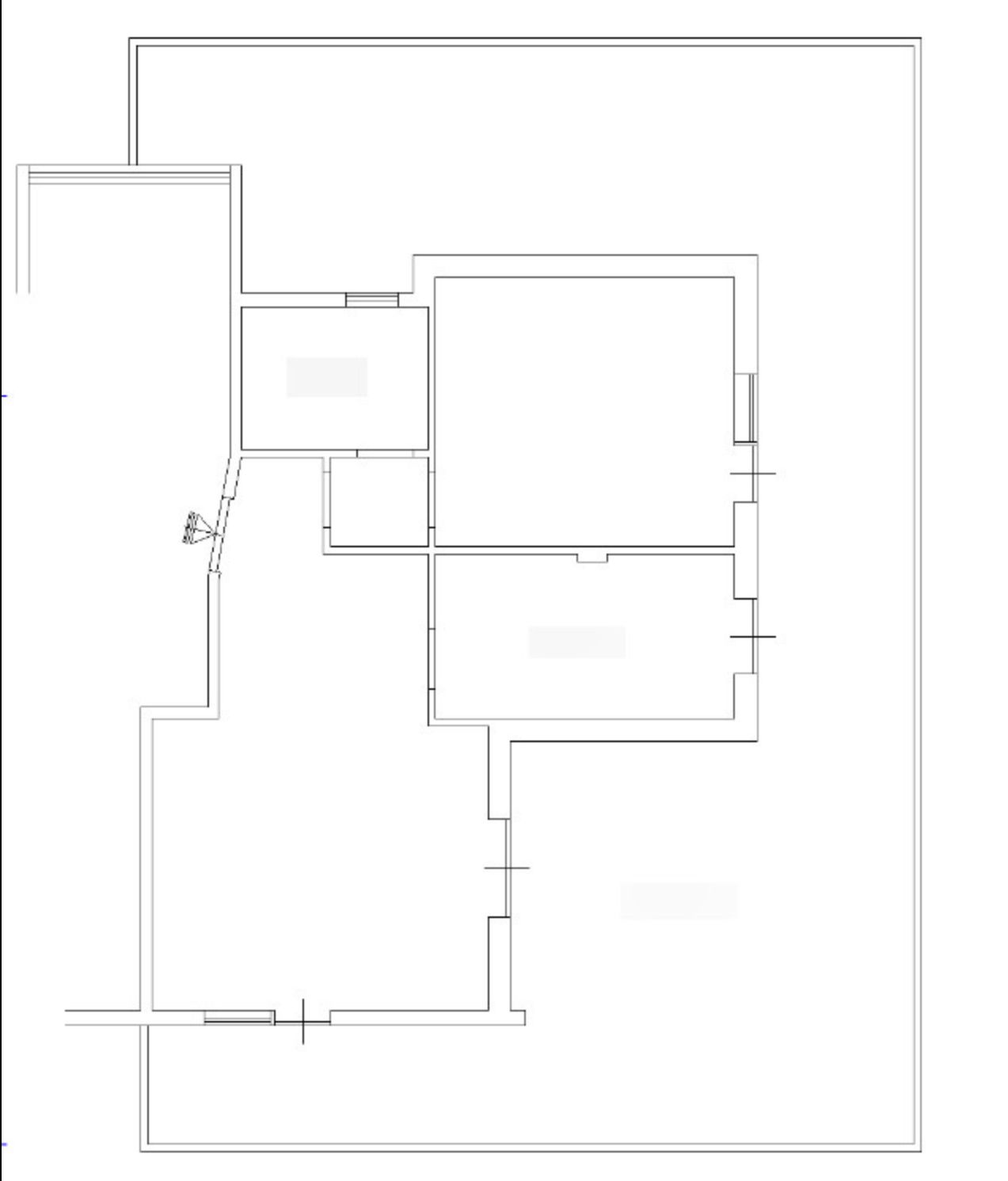
Appartamento posto al piano quinto, scala E, composto soggiorno con angolo cottura, disimpegno, due camere, un bagno, ripostiglio e un terrazzo. Completa la proprietà un box auto.
ONEIKA – Aste Immobiliari, da oltre 15 anni nel settore delle aste immobiliari, garantisce assistenza specializzata nel campo delle procedure esecutive e delle aste giudiziarie immobiliari.
Lo studio offre:
- Un servizio di assistenza nella ricerca dell'immobile e nell'analisi della documentazione che riguarda la procedura scelta;
- Preparazione dell'istruttoria necessaria alla partecipazione all'asta;
- Partecipazione all'asta con l'assistenza di professionisti seri e competenti;
- Garanzia di assistenza fino alla consegna dell'immobile;
- Supporto, con l'ausilio di specialisti del settore, nell'ottenimento di mutuo o finanziamento se necessario.
Siamo un team di professionisti in grado di fornire la migliore assistenza, studiando con il cliente la giusta strategia finalizzata all'aggiudicazione.
La cura del cliente è la nostra priorità!
La strada per la casa dei tuoi sogni passa da noi...
Contattaci per avere maggiori informazioni sull'immobile e su come partecipare all'asta in totale sicurezza.
Oneika – Aste Immobiliari - Mob. 344.6533655 - se
19424RM.5.110326 vari lotti disponibili
INDIRIZZO
Viale Gianluigi Bonelli, 543, 00127 Roma
DESCRIZIONE
Appartamento posto al piano quinto, scala E, composto soggiorno con angolo cottura, disimpegno, due camere, un bagno, ripostiglio e un terrazzo. Completa la proprietà un box auto.
ONEIKA – Aste Immobiliari, da oltre 15 anni nel settore delle aste immobiliari, garantisce assistenza specializzata nel campo delle procedure esecutive e delle aste giudiziarie immobiliari.
Lo studio offre:
- Un servizio di assistenza nella ricerca dell'immobile e nell'analisi della documentazione che riguarda la procedura scelta;
- Preparazione dell'istruttoria necessaria alla partecipazione all'asta;
- Partecipazione all'asta con l'assistenza di professionisti seri e competenti;
- Garanzia di assistenza fino alla consegna dell'immobile;
- Supporto, con l'ausilio di specialisti del settore, nell'ottenimento di mutuo o finanziamento se necessario.
Siamo un team di professionisti in grado di fornire la migliore assistenza, studiando con il cliente la giusta strategia finalizzata all'aggiudicazione.
La cura del cliente è la nostra priorità!
La strada per la casa dei tuoi sogni passa da noi...
Contattaci per avere maggiori informazioni sull'immobile e su come partecipare all'asta in totale sicurezza.
Oneika – Aste Immobiliari - Mob. 344.6533655 - se
Contratto Vendita
Asta si
Rif 19424RM.5.110326 vari lotti disponibili
Prezzo € 282.000
Provincia Roma
Comune Roma
Zona Mezzocammino
Indirizzo Viale Gianluigi Bonelli 543">
Vani 4
Camere 2
Bagni 1
Classe energetica
Non indicata
Piano 5 / 7
Riscaldamento autonomo
Condizioni abitabile
Anno di costruzione 1990
Ascensore si
Cucina angolo cottura
Consistenze
| Descrizione | Superficie | Sup. comm. |
|---|---|---|
| Principali | ||
| Immobile - 5° piano | 90 Mq | 90 Mqc |
| Totale | 90 Mqc | |










Zoom della mappa
Apri con:
Apple Maps
Google Maps
Waze
Apri la mappa
