Vendita
Appartamento a Vitorchiano
VITORCHIANO (VT)
A partire da € 70.500
NUMERO PROCEDURA E DATA ASTA
8223VT.1.110226
INDIRIZZO
Via degli ulivi 5, 01030 Vitorchiano
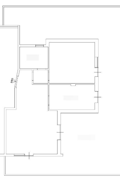
DESCRIZIONE
Appartamento distribuito su due livelli. Piano terra composto da soggiorno, cucina, due camere e bagno. Piano secondo mansardato composto da vari locali e bagno. Completano la proprietà una corte esterna e un garage al livello seminterrato.
ONEIKA – Aste Immobiliari, da oltre 15 anni nel settore delle aste immobiliari, garantisce assistenza specializzata nel campo delle procedure esecutive e delle aste giudiziarie immobiliari.
Lo studio offre:
- Un servizio di assistenza nella ricerca dell'immobile e nell'analisi della documentazione che riguarda la procedura scelta;
- Preparazione dell'istruttoria necessaria alla partecipazione all'asta;
- Partecipazione all'asta con l'assistenza di professionisti seri e competenti;
- Garanzia di assistenza fino alla consegna dell'immobile;
- Supporto, con l'ausilio di specialisti del settore, nell'ottenimento di mutuo o finanziamento se necessario.
Siamo un team di professionisti in grado di fornire la migliore assistenza, studiando con il cliente la giusta strategia finalizzata all'aggiudicazione.
La cura del cliente è la nostra priorità!
La strada per la casa dei tuoi sogni passa da noi...
Contattaci per avere maggiori informazioni sull'immobile e su come partecipare all'asta in totale sicurezza.
Oneika – Aste Immobiliari - Mob. 344.6533655 (SI)
8223VT.1.110226
INDIRIZZO
Via degli ulivi 5, 01030 Vitorchiano
DESCRIZIONE
Appartamento distribuito su due livelli. Piano terra composto da soggiorno, cucina, due camere e bagno. Piano secondo mansardato composto da vari locali e bagno. Completano la proprietà una corte esterna e un garage al livello seminterrato.
ONEIKA – Aste Immobiliari, da oltre 15 anni nel settore delle aste immobiliari, garantisce assistenza specializzata nel campo delle procedure esecutive e delle aste giudiziarie immobiliari.
Lo studio offre:
- Un servizio di assistenza nella ricerca dell'immobile e nell'analisi della documentazione che riguarda la procedura scelta;
- Preparazione dell'istruttoria necessaria alla partecipazione all'asta;
- Partecipazione all'asta con l'assistenza di professionisti seri e competenti;
- Garanzia di assistenza fino alla consegna dell'immobile;
- Supporto, con l'ausilio di specialisti del settore, nell'ottenimento di mutuo o finanziamento se necessario.
Siamo un team di professionisti in grado di fornire la migliore assistenza, studiando con il cliente la giusta strategia finalizzata all'aggiudicazione.
La cura del cliente è la nostra priorità!
La strada per la casa dei tuoi sogni passa da noi...
Contattaci per avere maggiori informazioni sull'immobile e su come partecipare all'asta in totale sicurezza.
Oneika – Aste Immobiliari - Mob. 344.6533655 (SI)
Contratto Vendita
Asta si
Rif 8223VT.1.110226
Prezzo € 70.500
Provincia Viterbo
Comune Vitorchiano
Indirizzo Via Degli Ulivi 5">
Vani 6
Camere 2
Bagni 2
Classe energetica
Non indicata
Riscaldamento inesistente
Condizioni da ristrutturare
Anno di costruzione 1967
Cucina abitabile
Consistenze
| Descrizione | Superficie | Sup. comm. |
|---|---|---|
| Principali | ||
| Immobile - piano terra | 90 Mq | 90 Mqc |
| Totale | 90 Mqc | |











Zoom della mappa
Apri con:
Apple Maps
Google Maps
Waze
Apri la mappa
