Vendita
Villa a schiera a Terracina
TERRACINA (LT)
A partire da € 145.500
NUMERO PROCEDURA E DATA ASTA
35818LT.100326
INDIRIZZO
Via Du Cros, 20, 04019 Borgo Hermada
DESCRIZIONE
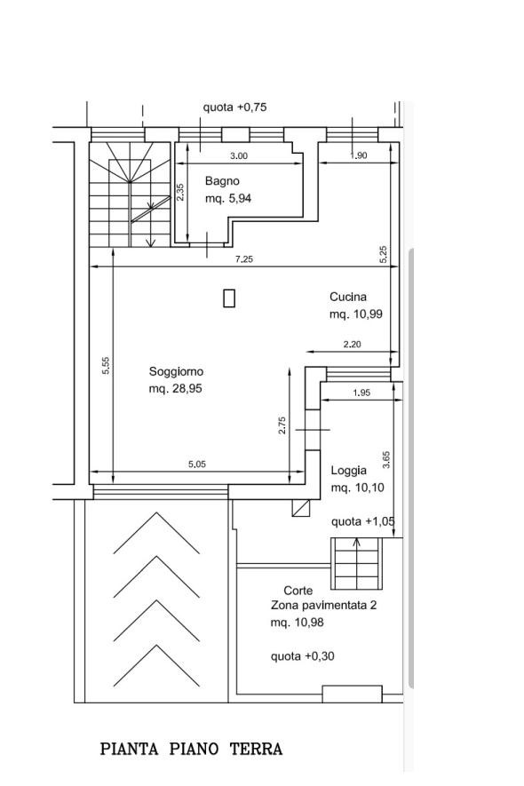
Villino a schiera distribuito su quattro livelli. Piano terra composto da ingresso, soggiorno con angolo cottura e bagno. Piano primo composto da tre camere, bagno e disimpegno. Al secondo piano terrazzo di copertura. Completano la proprietà una corte esclusiva, una cantina e un garage al piano seminterrato.
ONEIKA – Aste Immobiliari, da oltre 15 anni nel settore delle aste immobiliari, garantisce assistenza specializzata nel campo delle procedure esecutive e delle aste giudiziarie immobiliari.
Lo studio offre:
- Un servizio di assistenza nella ricerca dell'immobile e nell'analisi della documentazione che riguarda la procedura scelta;
- Preparazione dell'istruttoria necessaria alla partecipazione all'asta;
- Partecipazione all'asta con l'assistenza di professionisti seri e competenti;
- Garanzia di assistenza fino alla consegna dell'immobile;
- Supporto, con l'ausilio di specialisti del settore, nell'ottenimento di mutuo o finanziamento se necessario.
Siamo un team di professionisti in grado di fornire la migliore assistenza, studiando con il cliente la giusta strategia finalizzata all'aggiudicazione.
La cura del cliente è la nostra priorità!
La strada per la casa dei tuoi sogni passa da noi...
Contattaci per avere maggiori informazioni sull'immobile e su come partecipare all'asta in totale sicurezza.
Oneika – Aste Immobiliari - Mob. 344.6533655 (SI)
35818LT.100326
INDIRIZZO
Via Du Cros, 20, 04019 Borgo Hermada
DESCRIZIONE
Villino a schiera distribuito su quattro livelli. Piano terra composto da ingresso, soggiorno con angolo cottura e bagno. Piano primo composto da tre camere, bagno e disimpegno. Al secondo piano terrazzo di copertura. Completano la proprietà una corte esclusiva, una cantina e un garage al piano seminterrato.
ONEIKA – Aste Immobiliari, da oltre 15 anni nel settore delle aste immobiliari, garantisce assistenza specializzata nel campo delle procedure esecutive e delle aste giudiziarie immobiliari.
Lo studio offre:
- Un servizio di assistenza nella ricerca dell'immobile e nell'analisi della documentazione che riguarda la procedura scelta;
- Preparazione dell'istruttoria necessaria alla partecipazione all'asta;
- Partecipazione all'asta con l'assistenza di professionisti seri e competenti;
- Garanzia di assistenza fino alla consegna dell'immobile;
- Supporto, con l'ausilio di specialisti del settore, nell'ottenimento di mutuo o finanziamento se necessario.
Siamo un team di professionisti in grado di fornire la migliore assistenza, studiando con il cliente la giusta strategia finalizzata all'aggiudicazione.
La cura del cliente è la nostra priorità!
La strada per la casa dei tuoi sogni passa da noi...
Contattaci per avere maggiori informazioni sull'immobile e su come partecipare all'asta in totale sicurezza.
Oneika – Aste Immobiliari - Mob. 344.6533655 (SI)
Contratto Vendita
Asta si
Rif 35818LT.100326
Prezzo € 145.500
Provincia Latina
Comune Terracina
Indirizzo Via du Cros 14">
Vani 8
Camere 3
Bagni 2
Classe energetica
Non indicata
Riscaldamento autonomo
Condizioni abitabile
Anno di costruzione 1990
Cucina angolo cottura
Consistenze
| Descrizione | Superficie | Sup. comm. |
|---|---|---|
| Principali | ||
| Immobile - piano terra | 130 Mq | 130 Mqc |
| Totale | 130 Mqc | |


















Zoom della mappa
Apri con:
Apple Maps
Google Maps
Waze
Apri la mappa
