Vendita
Appartamento a Sessa Aurunca
SESSA AURUNCA (CE)
A partire da € 30.495
NUMERO PROCEDURA E DATA ASTA
11124SAN.260226
INDIRIZZO
Via Paolini, 13, 81037 Sessa Aurunca CE
DESCRIZIONE
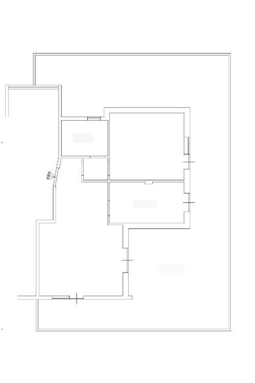
L'appartamento è posto al secondo piano ed è composto da piccolo ingresso, soggiorno con camino, cucina, due camere da letto, bagno e balcone. All'appartamento è annesso un locale ripostiglio di circa 8mq al piano terra. Occupato con contratto di locazione stipulato nel 2015.
ONEIKA – Aste Immobiliari, da oltre 15 anni nel settore delle aste immobiliari, garantisce assistenza specializzata nel campo delle procedure esecutive e delle aste giudiziarie immobiliari.
Lo studio offre:
- Un servizio di assistenza nella ricerca dell'immobile e nell'analisi della documentazione che riguarda la procedura scelta;
- Preparazione dell'istruttoria necessaria alla partecipazione all'asta;
- Partecipazione all'asta con l'assistenza di professionisti seri e competenti;
- Garanzia di assistenza fino alla consegna dell'immobile;
- Supporto, con l'ausilio di specialisti del settore, nell'ottenimento di mutuo o finanziamento se necessario.
Siamo un team di professionisti in grado di fornire la migliore assistenza, studiando con il cliente la giusta strategia finalizzata all'aggiudicazione.
La cura del cliente è la nostra priorità!
La strada per la casa dei tuoi sogni passa da noi...
Contattaci per avere maggiori informazioni sull'immobile e su come partecipare all'asta in totale sicurezza.
Oneika – Aste Immobiliari - Mob. 344.6533655 -AM
11124SAN.260226
INDIRIZZO
Via Paolini, 13, 81037 Sessa Aurunca CE
DESCRIZIONE
L'appartamento è posto al secondo piano ed è composto da piccolo ingresso, soggiorno con camino, cucina, due camere da letto, bagno e balcone. All'appartamento è annesso un locale ripostiglio di circa 8mq al piano terra. Occupato con contratto di locazione stipulato nel 2015.
ONEIKA – Aste Immobiliari, da oltre 15 anni nel settore delle aste immobiliari, garantisce assistenza specializzata nel campo delle procedure esecutive e delle aste giudiziarie immobiliari.
Lo studio offre:
- Un servizio di assistenza nella ricerca dell'immobile e nell'analisi della documentazione che riguarda la procedura scelta;
- Preparazione dell'istruttoria necessaria alla partecipazione all'asta;
- Partecipazione all'asta con l'assistenza di professionisti seri e competenti;
- Garanzia di assistenza fino alla consegna dell'immobile;
- Supporto, con l'ausilio di specialisti del settore, nell'ottenimento di mutuo o finanziamento se necessario.
Siamo un team di professionisti in grado di fornire la migliore assistenza, studiando con il cliente la giusta strategia finalizzata all'aggiudicazione.
La cura del cliente è la nostra priorità!
La strada per la casa dei tuoi sogni passa da noi...
Contattaci per avere maggiori informazioni sull'immobile e su come partecipare all'asta in totale sicurezza.
Oneika – Aste Immobiliari - Mob. 344.6533655 -AM
Contratto Vendita
Asta si
Rif 11124SAN.260226
Prezzo € 30.495
Provincia Caserta
Comune Sessa Aurunca
Indirizzo Via Paolini 13">
Vani 5
Camere 2
Bagni 1
Classe energetica
Non indicata
Piano 2 / 3
Riscaldamento autonomo
Condizioni abitabile
Spese condominiali € 1
Anno di costruzione 1967
Cucina abitabile
Consistenze
| Descrizione | Superficie | Sup. comm. |
|---|---|---|
| Principali | ||
| Immobile - 2° piano | 108 Mq | 108 Mqc |
| Totale | 108 Mqc | |










Zoom della mappa
Apri con:
Apple Maps
Google Maps
Waze
Apri la mappa
