Vendita
Appartamento a Grugliasco
GRUGLIASCO (TO)
A partire da € 60.000
NUMERO PROCEDURA E DATA ASTA
102124TO.200126
INDIRIZZO
Corso Adriatico, 381, 10095 Grugliasco TO
DESCRIZIONE
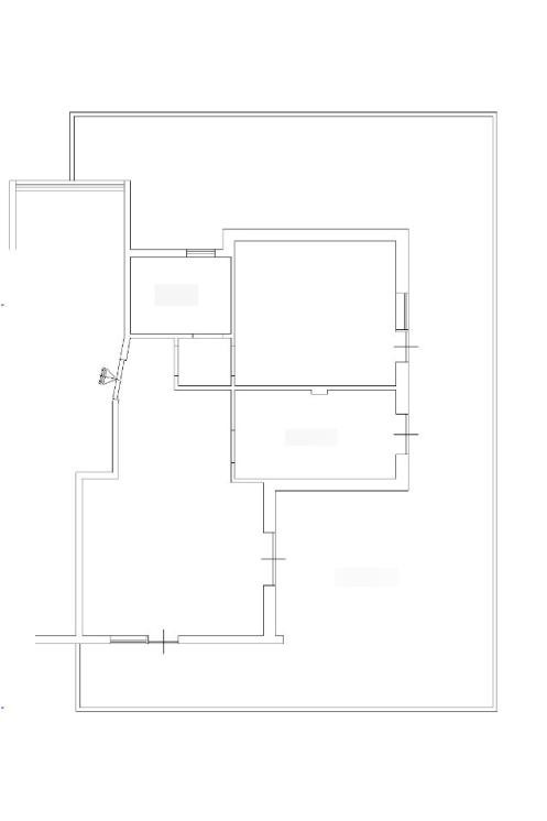
Appartamento (bilocale) al piano rialzato (1° piano fuori terra). E' composto da disimpegno, tinello con angolo cottura, una camera, un bagno, ed un ripostiglio, oltre alla cantina al piano interrato. Contratto stipulato anteriormente alla data di trascrizione del pignoramento, che prevede un periodo di locazione di quattro anni (dal 17 giugno 2022 al 17 giugno 2026) . Con provvedimento del 16/09/2025 il Signor Giudice dell'Esecuzione ha autorizzato il Custode ad intraprendere procedura di sfratto per morosità.
ONEIKA – Aste Immobiliari, da oltre 15 anni nel settore delle aste immobiliari, garantisce assistenza specializzata nel campo delle procedure esecutive e delle aste giudiziarie immobiliari.
Lo studio offre:
- Un servizio di assistenza nella ricerca dell'immobile e nell'analisi della documentazione che riguarda la procedura scelta;
- Preparazione dell'istruttoria necessaria alla partecipazione all'asta;
- Partecipazione all'asta con l'assistenza di professionisti seri e competenti;
- Garanzia di assistenza fino alla consegna dell'immobile;
- Supporto, con l'ausilio di specialisti del settore, nell'ottenimento di mutuo o finanziamento se necessario.
Siamo un team di professionisti in grado di fornire la migliore assistenza, studiando con il cliente la giusta strategia finalizzata all'aggiudicazione.
La cura del cliente è la nostra priorità!
La strada per la casa dei tuoi sogni passa da noi...
Contattaci per avere maggiori informazioni sull'immobile e su come partecipare all'asta in totale sicurezza.
Oneika – Aste Immobiliari - Mob. 344.6533655 -AM
102124TO.200126
INDIRIZZO
Corso Adriatico, 381, 10095 Grugliasco TO
DESCRIZIONE
Appartamento (bilocale) al piano rialzato (1° piano fuori terra). E' composto da disimpegno, tinello con angolo cottura, una camera, un bagno, ed un ripostiglio, oltre alla cantina al piano interrato. Contratto stipulato anteriormente alla data di trascrizione del pignoramento, che prevede un periodo di locazione di quattro anni (dal 17 giugno 2022 al 17 giugno 2026) . Con provvedimento del 16/09/2025 il Signor Giudice dell'Esecuzione ha autorizzato il Custode ad intraprendere procedura di sfratto per morosità.
ONEIKA – Aste Immobiliari, da oltre 15 anni nel settore delle aste immobiliari, garantisce assistenza specializzata nel campo delle procedure esecutive e delle aste giudiziarie immobiliari.
Lo studio offre:
- Un servizio di assistenza nella ricerca dell'immobile e nell'analisi della documentazione che riguarda la procedura scelta;
- Preparazione dell'istruttoria necessaria alla partecipazione all'asta;
- Partecipazione all'asta con l'assistenza di professionisti seri e competenti;
- Garanzia di assistenza fino alla consegna dell'immobile;
- Supporto, con l'ausilio di specialisti del settore, nell'ottenimento di mutuo o finanziamento se necessario.
Siamo un team di professionisti in grado di fornire la migliore assistenza, studiando con il cliente la giusta strategia finalizzata all'aggiudicazione.
La cura del cliente è la nostra priorità!
La strada per la casa dei tuoi sogni passa da noi...
Contattaci per avere maggiori informazioni sull'immobile e su come partecipare all'asta in totale sicurezza.
Oneika – Aste Immobiliari - Mob. 344.6533655 -AM
Contratto Vendita
Asta si
Rif 102124TO.200126
Prezzo € 60.000
Provincia Torino
Comune Grugliasco
Indirizzo Corso Adriatico 381">
Vani 3
Camere 1
Bagni 1
Classe energetica
Non indicata
Riscaldamento autonomo
Condizioni abitabile
Spese condominiali € 1
Anno di costruzione 1967
Ascensore si
Cucina angolo cottura
Consistenze
| Descrizione | Superficie | Sup. comm. |
|---|---|---|
| Principali | ||
| Immobile - piano rialzato | 82 Mq | 82 Mqc |
| Totale | 82 Mqc | |












Zoom della mappa
Apri con:
Apple Maps
Google Maps
Waze
Apri la mappa
