Vendita
Appartamento a Santa Maria a Monte
SANTA MARIA A MONTE (PI)
A partire da € 168.750
NUMERO PROCEDURA E DATA ASTA
4818PI.1.050226
INDIRIZZO
Via Pregiuntino, 70, A, 56020 Santa Maria a Monte
DESCRIZIONE
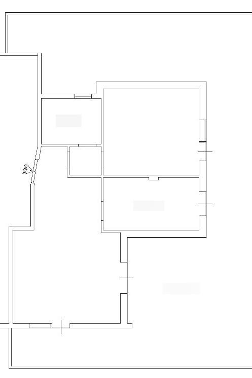
Appartamento facente parte di un fabbricato bifamiliare, distribuito su due livelli. Piano terra composto da soggiorno, cucina, disimpegno e bagno. Piano primo composto da disimpegno, due camere, bagno, locale sgombero e terrazzo. Completano la proprietà un locale garage, un vano tecnico e un resede comune.
ONEIKA – Aste Immobiliari, da oltre 15 anni nel settore delle aste immobiliari, garantisce assistenza specializzata nel campo delle procedure esecutive e delle aste giudiziarie immobiliari.
Lo studio offre:
- Un servizio di assistenza nella ricerca dell'immobile e nell'analisi della documentazione che riguarda la procedura scelta;
- Preparazione dell'istruttoria necessaria alla partecipazione all'asta;
- Partecipazione all'asta con l'assistenza di professionisti seri e competenti;
- Garanzia di assistenza fino alla consegna dell'immobile;
- Supporto, con l'ausilio di specialisti del settore, nell'ottenimento di mutuo o finanziamento se necessario.
Siamo un team di professionisti in grado di fornire la migliore assistenza, studiando con il cliente la giusta strategia finalizzata all'aggiudicazione.
La cura del cliente è la nostra priorità!
La strada per la casa dei tuoi sogni passa da noi...
Contattaci per avere maggiori informazioni sull'immobile e su come partecipare all'asta in totale sicurezza.
Oneika – Aste Immobiliari - Mob. 344.6533655 (SI)
4818PI.1.050226
INDIRIZZO
Via Pregiuntino, 70, A, 56020 Santa Maria a Monte
DESCRIZIONE
Appartamento facente parte di un fabbricato bifamiliare, distribuito su due livelli. Piano terra composto da soggiorno, cucina, disimpegno e bagno. Piano primo composto da disimpegno, due camere, bagno, locale sgombero e terrazzo. Completano la proprietà un locale garage, un vano tecnico e un resede comune.
ONEIKA – Aste Immobiliari, da oltre 15 anni nel settore delle aste immobiliari, garantisce assistenza specializzata nel campo delle procedure esecutive e delle aste giudiziarie immobiliari.
Lo studio offre:
- Un servizio di assistenza nella ricerca dell'immobile e nell'analisi della documentazione che riguarda la procedura scelta;
- Preparazione dell'istruttoria necessaria alla partecipazione all'asta;
- Partecipazione all'asta con l'assistenza di professionisti seri e competenti;
- Garanzia di assistenza fino alla consegna dell'immobile;
- Supporto, con l'ausilio di specialisti del settore, nell'ottenimento di mutuo o finanziamento se necessario.
Siamo un team di professionisti in grado di fornire la migliore assistenza, studiando con il cliente la giusta strategia finalizzata all'aggiudicazione.
La cura del cliente è la nostra priorità!
La strada per la casa dei tuoi sogni passa da noi...
Contattaci per avere maggiori informazioni sull'immobile e su come partecipare all'asta in totale sicurezza.
Oneika – Aste Immobiliari - Mob. 344.6533655 (SI)
Contratto Vendita
Asta si
Rif 4818PI.1.050226
Prezzo € 168.750
Provincia Pisa
Comune Santa Maria a Monte
Indirizzo Via Pregiuntino 70a">
Vani 6
Camere 2
Bagni 2
Classe energetica
Non indicata
Riscaldamento autonomo
Condizioni abitabile
Anno di costruzione 1967
Cucina abitabile
Consistenze
| Descrizione | Superficie | Sup. comm. |
|---|---|---|
| Principali | ||
| Immobile - piano terra | 145 Mq | 145 Mqc |
| Totale | 145 Mqc | |














Zoom della mappa
Apri con:
Apple Maps
Google Maps
Waze
Apri la mappa
