Vendita
Appartamento a Roma
ROMA (RM)
- ZONA Battistini - Primavalle
A partire da € 128.230
NUMERO PROCEDURA E DATA ASTA
6321RM.29.220126
INDIRIZZO
Via Stefano Borgia, 5, 00168 Roma
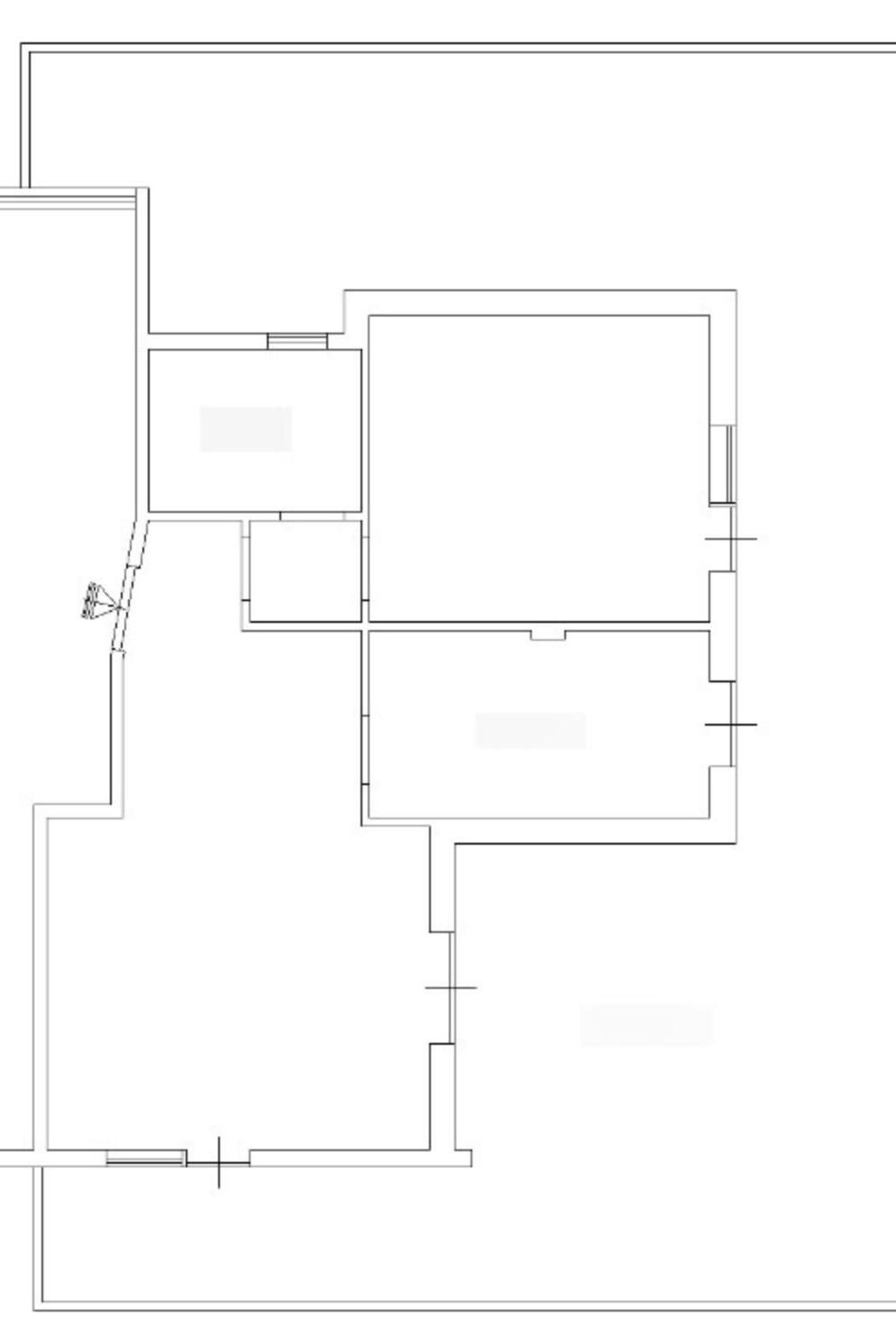
DESCRIZIONE
Appartamento al piano terzo, interno 5, composto da disimpegno, bagno, cucina, soggiorno, una camera da letto e due balconi.
ONEIKA – Aste Immobiliari, da oltre 15 anni nel settore delle aste immobiliari, garantisce assistenza specializzata nel campo delle procedure esecutive e delle aste giudiziarie immobiliari.
Lo studio offre:
- Un servizio di assistenza nella ricerca dell'immobile e nell'analisi della documentazione che riguarda la procedura scelta;
- Preparazione dell'istruttoria necessaria alla partecipazione all'asta;
- Partecipazione all'asta con l'assistenza di professionisti seri e competenti;
- Garanzia di assistenza fino alla consegna dell'immobile;
- Supporto, con l'ausilio di specialisti del settore, nell'ottenimento di mutuo o finanziamento se necessario.
Siamo un team di professionisti in grado di fornire la migliore assistenza, studiando con il cliente la giusta strategia finalizzata all'aggiudicazione.
La cura del cliente è la nostra priorità!
La strada per la casa dei tuoi sogni passa da noi...
Contattaci per avere maggiori informazioni sull'immobile e su come partecipare all'asta in totale sicurezza.
Oneika – Aste Immobiliari - Mob. 344.6533655 - se
6321RM.29.220126
INDIRIZZO
Via Stefano Borgia, 5, 00168 Roma
DESCRIZIONE
Appartamento al piano terzo, interno 5, composto da disimpegno, bagno, cucina, soggiorno, una camera da letto e due balconi.
ONEIKA – Aste Immobiliari, da oltre 15 anni nel settore delle aste immobiliari, garantisce assistenza specializzata nel campo delle procedure esecutive e delle aste giudiziarie immobiliari.
Lo studio offre:
- Un servizio di assistenza nella ricerca dell'immobile e nell'analisi della documentazione che riguarda la procedura scelta;
- Preparazione dell'istruttoria necessaria alla partecipazione all'asta;
- Partecipazione all'asta con l'assistenza di professionisti seri e competenti;
- Garanzia di assistenza fino alla consegna dell'immobile;
- Supporto, con l'ausilio di specialisti del settore, nell'ottenimento di mutuo o finanziamento se necessario.
Siamo un team di professionisti in grado di fornire la migliore assistenza, studiando con il cliente la giusta strategia finalizzata all'aggiudicazione.
La cura del cliente è la nostra priorità!
La strada per la casa dei tuoi sogni passa da noi...
Contattaci per avere maggiori informazioni sull'immobile e su come partecipare all'asta in totale sicurezza.
Oneika – Aste Immobiliari - Mob. 344.6533655 - se
Contratto Vendita
Asta si
Rif 6321RM.29.220126
Prezzo € 128.230
Provincia Roma
Comune Roma
Zona Battistini - Primavalle
Indirizzo Via Stefano Borgia 5">
Vani 4
Camere 1
Bagni 1
Classe energetica
Non indicata
Piano 3 / 4
Riscaldamento autonomo
Condizioni abitabile
Anno di costruzione 1970
Cucina abitabile
Consistenze
| Descrizione | Superficie | Sup. comm. |
|---|---|---|
| Principali | ||
| Immobile - 3° piano | 60 Mq | 60 Mqc |
| Totale | 60 Mqc | |










Zoom della mappa
Apri con:
Apple Maps
Google Maps
Waze
Apri la mappa
