Vendita
Appartamento a Trentola-ducenta
TRENTOLA-DUCENTA (CE)
A partire da € 30.000
NUMERO PROCEDURA E DATA ASTA
2725NAN.280126
INDIRIZZO
Traversa terza di Via Ambra n.1, 81038 Trentola-Ducenta Caserta
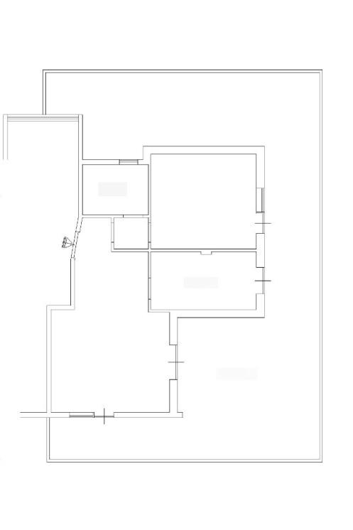
DESCRIZIONE
Appartamento allo stato grezzo facente parte del fabbricato. L'appartamento è posto al primo piano ed è composto da un unico grande ambiente, allo stato grezzo, di circa 95,00 mq di superficie calpestabile interna e da un balcone/ballatoio ad "L". L'immobile non presenta porta di ingresso, né infissi, né impianti, né finiture.
ONEIKA – Aste Immobiliari, da oltre 15 anni nel settore delle aste immobiliari, garantisce assistenza specializzata nel campo delle procedure esecutive e delle aste giudiziarie immobiliari.
Lo studio offre:
- Un servizio di assistenza nella ricerca dell'immobile e nell'analisi della documentazione che riguarda la procedura scelta;
- Preparazione dell'istruttoria necessaria alla partecipazione all'asta;
- Partecipazione all'asta con l'assistenza di professionisti seri e competenti;
- Garanzia di assistenza fino alla consegna dell'immobile;
- Supporto, con l'ausilio di specialisti del settore, nell'ottenimento di mutuo o finanziamento se necessario.
Siamo un team di professionisti in grado di fornire la migliore assistenza, studiando con il cliente la giusta strategia finalizzata all'aggiudicazione.
La cura del cliente è la nostra priorità!
La strada per la casa dei tuoi sogni passa da noi...
Contattaci per avere maggiori informazioni sull'immobile e su come partecipare all'asta in totale sicurezza.
Oneika – Aste Immobiliari - Mob. 344.6533655 -AM
2725NAN.280126
INDIRIZZO
Traversa terza di Via Ambra n.1, 81038 Trentola-Ducenta Caserta
DESCRIZIONE
Appartamento allo stato grezzo facente parte del fabbricato. L'appartamento è posto al primo piano ed è composto da un unico grande ambiente, allo stato grezzo, di circa 95,00 mq di superficie calpestabile interna e da un balcone/ballatoio ad "L". L'immobile non presenta porta di ingresso, né infissi, né impianti, né finiture.
ONEIKA – Aste Immobiliari, da oltre 15 anni nel settore delle aste immobiliari, garantisce assistenza specializzata nel campo delle procedure esecutive e delle aste giudiziarie immobiliari.
Lo studio offre:
- Un servizio di assistenza nella ricerca dell'immobile e nell'analisi della documentazione che riguarda la procedura scelta;
- Preparazione dell'istruttoria necessaria alla partecipazione all'asta;
- Partecipazione all'asta con l'assistenza di professionisti seri e competenti;
- Garanzia di assistenza fino alla consegna dell'immobile;
- Supporto, con l'ausilio di specialisti del settore, nell'ottenimento di mutuo o finanziamento se necessario.
Siamo un team di professionisti in grado di fornire la migliore assistenza, studiando con il cliente la giusta strategia finalizzata all'aggiudicazione.
La cura del cliente è la nostra priorità!
La strada per la casa dei tuoi sogni passa da noi...
Contattaci per avere maggiori informazioni sull'immobile e su come partecipare all'asta in totale sicurezza.
Oneika – Aste Immobiliari - Mob. 344.6533655 -AM
Contratto Vendita
Asta si
Rif 2725NAN.280126
Prezzo € 30.000
Provincia Caserta
Comune Trentola-ducenta
Indirizzo Via Ambra Traversa 3 1">
Vani 5
Camere 2
Bagni 1
Classe energetica
Non indicata
Piano 1 / 2
Riscaldamento inesistente
Condizioni abitabile
Spese condominiali € 1
Anno di costruzione 1967
Cucina abitabile
Consistenze
| Descrizione | Superficie | Sup. comm. |
|---|---|---|
| Principali | ||
| Immobile - 1° piano | 95 Mq | 95 Mqc |
| Totale | 95 Mqc | |












Zoom della mappa
Apri con:
Apple Maps
Google Maps
Waze
Apri la mappa
