Vendita
Appartamento a Torino
TORINO (TO)
- ZONA Mirafiori Nord
A partire da € 74.556
NUMERO PROCEDURA E DATA ASTA
7725TO.170226
INDIRIZZO
Via Enrico Dandolo, 4, 10137 Torino
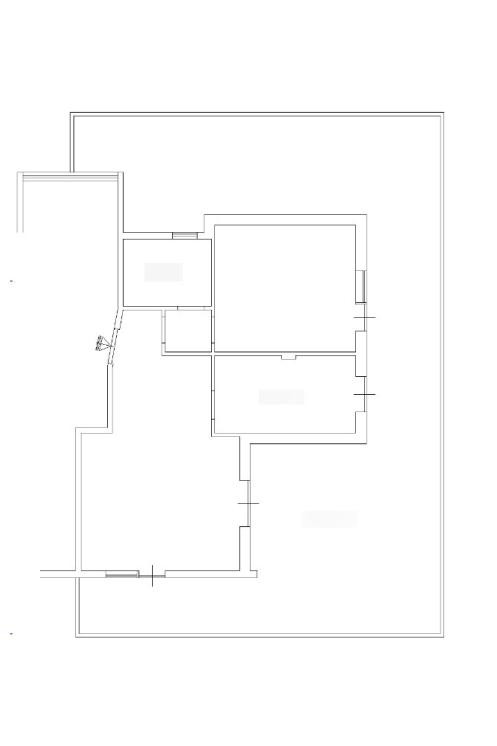
DESCRIZIONE
APPARTAMENTO DELLA SUPERFICIE DI MQ. 61,01 POSTO AL PIANO NON DELL'EDIFICIO RESIDENZIALE CON ACCESSO DA VIA DANDOLO 4, COMPOSTO DA INGRESSO, CAMERA E CUCINA, RIPOSTIGLIO, BAGNO. CANTINA PERTINENZIALE AL PIANO INTERRATO.
ONEIKA – Aste Immobiliari, da oltre 15 anni nel settore delle aste immobiliari, garantisce assistenza specializzata nel campo delle procedure esecutive e delle aste giudiziarie immobiliari.
Lo studio offre:
- Un servizio di assistenza nella ricerca dell'immobile e nell'analisi della documentazione che riguarda la procedura scelta;
- Preparazione dell'istruttoria necessaria alla partecipazione all'asta;
- Partecipazione all'asta con l'assistenza di professionisti seri e competenti;
- Garanzia di assistenza fino alla consegna dell'immobile;
- Supporto, con l'ausilio di specialisti del settore, nell'ottenimento di mutuo o finanziamento se necessario.
Siamo un team di professionisti in grado di fornire la migliore assistenza, studiando con il cliente la giusta strategia finalizzata all'aggiudicazione.
La cura del cliente è la nostra priorità!
La strada per la casa dei tuoi sogni passa da noi...
Contattaci per avere maggiori informazioni sull'immobile e su come partecipare all'asta in totale sicurezza.
Oneika – Aste Immobiliari - Mob. 344.6533655 -AM
7725TO.170226
INDIRIZZO
Via Enrico Dandolo, 4, 10137 Torino
DESCRIZIONE
APPARTAMENTO DELLA SUPERFICIE DI MQ. 61,01 POSTO AL PIANO NON DELL'EDIFICIO RESIDENZIALE CON ACCESSO DA VIA DANDOLO 4, COMPOSTO DA INGRESSO, CAMERA E CUCINA, RIPOSTIGLIO, BAGNO. CANTINA PERTINENZIALE AL PIANO INTERRATO.
ONEIKA – Aste Immobiliari, da oltre 15 anni nel settore delle aste immobiliari, garantisce assistenza specializzata nel campo delle procedure esecutive e delle aste giudiziarie immobiliari.
Lo studio offre:
- Un servizio di assistenza nella ricerca dell'immobile e nell'analisi della documentazione che riguarda la procedura scelta;
- Preparazione dell'istruttoria necessaria alla partecipazione all'asta;
- Partecipazione all'asta con l'assistenza di professionisti seri e competenti;
- Garanzia di assistenza fino alla consegna dell'immobile;
- Supporto, con l'ausilio di specialisti del settore, nell'ottenimento di mutuo o finanziamento se necessario.
Siamo un team di professionisti in grado di fornire la migliore assistenza, studiando con il cliente la giusta strategia finalizzata all'aggiudicazione.
La cura del cliente è la nostra priorità!
La strada per la casa dei tuoi sogni passa da noi...
Contattaci per avere maggiori informazioni sull'immobile e su come partecipare all'asta in totale sicurezza.
Oneika – Aste Immobiliari - Mob. 344.6533655 -AM
Contratto Vendita
Asta si
Rif 7725TO.170226
Prezzo € 74.556
Provincia Torino
Comune Torino
Zona Mirafiori Nord
Indirizzo Via Enrico Dandolo 4">
Vani 4
Camere 1
Bagni 1
Classe energetica
Non indicata
Piano 9 / 9
Riscaldamento autonomo
Condizioni abitabile
Spese condominiali € 1
Anno di costruzione 1967
Ascensore si
Cucina angolo cottura
Consistenze
| Descrizione | Superficie | Sup. comm. |
|---|---|---|
| Principali | ||
| Immobile - 9° piano | 61 Mq | 61 Mqc |
| Totale | 61 Mqc | |











Zoom della mappa
Apri con:
Apple Maps
Google Maps
Waze
Apri la mappa
