Vendita
Appartamento a Cardito
CARDITO (NA)
A partire da € 52.500
NUMERO PROCEDURA E DATA ASTA
34323NAN.130126
INDIRIZZO
Via Nuova Belvedere, 140, 80024 Carditello NA
DESCRIZIONE
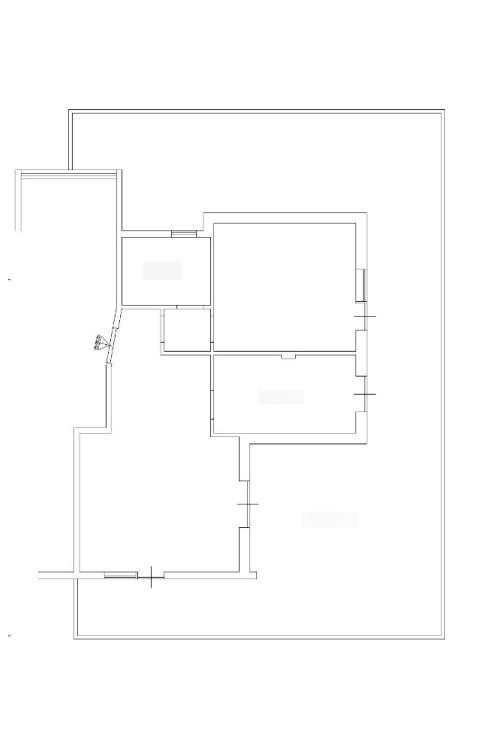
Proprietà di abitazione con deposito di pertinenza. Abitazione è costituita da 3 livelli: piano terra: un soggiorno a doppia altezza, una cucina, un locale wc ed un ripostiglio sottoscala; piano ammezzato: un ballatoio ed una camera da letto; primo piano: due camere da letto, una con annessa cabina armadio, con balcone comune, e altro bagno.
ONEIKA – Aste Immobiliari, da oltre 15 anni nel settore delle aste immobiliari, garantisce assistenza specializzata nel campo delle procedure esecutive e delle aste giudiziarie immobiliari.
Lo studio offre:
- Un servizio di assistenza nella ricerca dell'immobile e nell'analisi della documentazione che riguarda la procedura scelta;
- Preparazione dell'istruttoria necessaria alla partecipazione all'asta;
- Partecipazione all'asta con l'assistenza di professionisti seri e competenti;
- Garanzia di assistenza fino alla consegna dell'immobile;
- Supporto, con l'ausilio di specialisti del settore, nell'ottenimento di mutuo o finanziamento se necessario.
Siamo un team di professionisti in grado di fornire la migliore assistenza, studiando con il cliente la giusta strategia finalizzata all'aggiudicazione.
La cura del cliente è la nostra priorità!
La strada per la casa dei tuoi sogni passa da noi...
Contattaci per avere maggiori informazioni sull'immobile e su come partecipare all'asta in totale sicurezza.
Oneika – Aste Immobiliari - Mob. 344.6533655 -AM
34323NAN.130126
INDIRIZZO
Via Nuova Belvedere, 140, 80024 Carditello NA
DESCRIZIONE
Proprietà di abitazione con deposito di pertinenza. Abitazione è costituita da 3 livelli: piano terra: un soggiorno a doppia altezza, una cucina, un locale wc ed un ripostiglio sottoscala; piano ammezzato: un ballatoio ed una camera da letto; primo piano: due camere da letto, una con annessa cabina armadio, con balcone comune, e altro bagno.
ONEIKA – Aste Immobiliari, da oltre 15 anni nel settore delle aste immobiliari, garantisce assistenza specializzata nel campo delle procedure esecutive e delle aste giudiziarie immobiliari.
Lo studio offre:
- Un servizio di assistenza nella ricerca dell'immobile e nell'analisi della documentazione che riguarda la procedura scelta;
- Preparazione dell'istruttoria necessaria alla partecipazione all'asta;
- Partecipazione all'asta con l'assistenza di professionisti seri e competenti;
- Garanzia di assistenza fino alla consegna dell'immobile;
- Supporto, con l'ausilio di specialisti del settore, nell'ottenimento di mutuo o finanziamento se necessario.
Siamo un team di professionisti in grado di fornire la migliore assistenza, studiando con il cliente la giusta strategia finalizzata all'aggiudicazione.
La cura del cliente è la nostra priorità!
La strada per la casa dei tuoi sogni passa da noi...
Contattaci per avere maggiori informazioni sull'immobile e su come partecipare all'asta in totale sicurezza.
Oneika – Aste Immobiliari - Mob. 344.6533655 -AM
Contratto Vendita
Asta si
Rif 34323NAN.130126
Prezzo € 52.500
Provincia Napoli
Comune Cardito
Indirizzo Via Nuova Belvedere 140">
Vani 7
Camere 3
Bagni 2
Classe energetica
Non indicata
Riscaldamento autonomo
Condizioni abitabile
Spese condominiali € 1
Anno di costruzione 1967
Cucina abitabile
Consistenze
| Descrizione | Superficie | Sup. comm. |
|---|---|---|
| Principali | ||
| Immobile - piano terra | 140 Mq | 140 Mqc |
| Totale | 140 Mqc | |











Zoom della mappa
Apri con:
Apple Maps
Google Maps
Waze
Apri la mappa
