Vendita
Appartamento a Selargius
SELARGIUS (CA)
A partire da € 207.000
NUMERO PROCEDURA E DATA ASTA
12224CA.030226
INDIRIZZO
Via Antonio Gramsci, 09047 Selargius
DESCRIZIONE
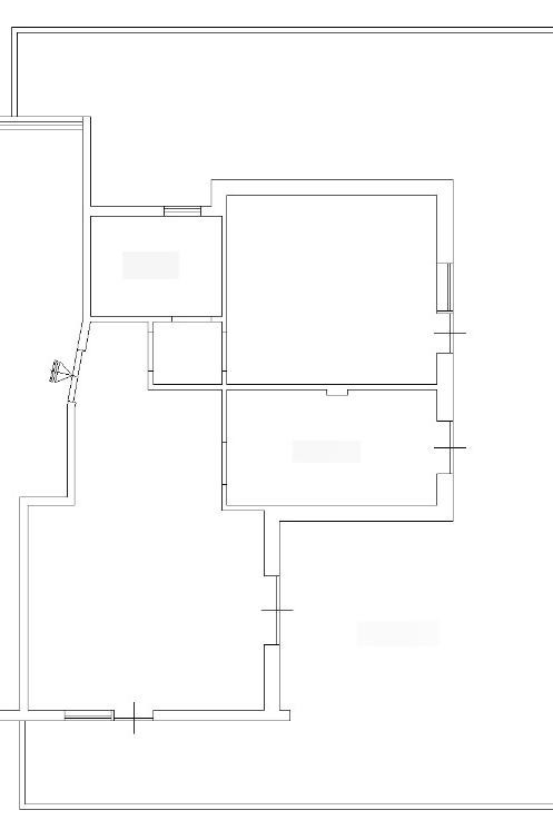
Appartamento primo piano composto da ingresso, disimpegno, salone, cucina, due camere, bagno e due balconi.
Immobile occupato da terzi che hanno esibito un contratto di locazione senza corrispondere le rate mensili, è stato emesso l'ordine di liberazione in data 12/06/24, e l'autorizzazione ad eseguirlo in data 18/09/25.
ONEIKA – Aste Immobiliari, da oltre 15 anni nel settore delle aste immobiliari, garantisce assistenza specializzata nel campo delle procedure esecutive e delle aste giudiziarie immobiliari.
Lo studio offre:
- Un servizio di assistenza nella ricerca dell'immobile e nell'analisi della documentazione che riguarda la procedura scelta;
- Preparazione dell'istruttoria necessaria alla partecipazione all'asta;
- Partecipazione all'asta con l'assistenza di professionisti seri e competenti;
- Garanzia di assistenza fino alla consegna dell'immobile;
- Supporto, con l'ausilio di specialisti del settore, nell'ottenimento di mutuo o finanziamento se necessario.
Siamo un team di professionisti in grado di fornire la migliore assistenza, studiando con il cliente la giusta strategia finalizzata all'aggiudicazione.
La cura del cliente è la nostra priorità!
La strada per la casa dei tuoi sogni passa da noi...
Contattaci per avere maggiori informazioni sull'immobile e su come partecipare all'asta in totale sicurezza.
Oneika – Aste Immobiliari - Mob. 344.6533655 (SI)
12224CA.030226
INDIRIZZO
Via Antonio Gramsci, 09047 Selargius
DESCRIZIONE
Appartamento primo piano composto da ingresso, disimpegno, salone, cucina, due camere, bagno e due balconi.
Immobile occupato da terzi che hanno esibito un contratto di locazione senza corrispondere le rate mensili, è stato emesso l'ordine di liberazione in data 12/06/24, e l'autorizzazione ad eseguirlo in data 18/09/25.
ONEIKA – Aste Immobiliari, da oltre 15 anni nel settore delle aste immobiliari, garantisce assistenza specializzata nel campo delle procedure esecutive e delle aste giudiziarie immobiliari.
Lo studio offre:
- Un servizio di assistenza nella ricerca dell'immobile e nell'analisi della documentazione che riguarda la procedura scelta;
- Preparazione dell'istruttoria necessaria alla partecipazione all'asta;
- Partecipazione all'asta con l'assistenza di professionisti seri e competenti;
- Garanzia di assistenza fino alla consegna dell'immobile;
- Supporto, con l'ausilio di specialisti del settore, nell'ottenimento di mutuo o finanziamento se necessario.
Siamo un team di professionisti in grado di fornire la migliore assistenza, studiando con il cliente la giusta strategia finalizzata all'aggiudicazione.
La cura del cliente è la nostra priorità!
La strada per la casa dei tuoi sogni passa da noi...
Contattaci per avere maggiori informazioni sull'immobile e su come partecipare all'asta in totale sicurezza.
Oneika – Aste Immobiliari - Mob. 344.6533655 (SI)
Contratto Vendita
Asta si
Rif 12224CA.030226
Prezzo € 207.000
Provincia Cagliari
Comune Selargius
Indirizzo Via Antonio Gramsci 55">
Vani 5
Camere 2
Bagni 1
Classe energetica
Non indicata
Piano 1 / 2
Riscaldamento autonomo
Condizioni abitabile
Anno di costruzione 1967
Cucina abitabile
Consistenze
| Descrizione | Superficie | Sup. comm. |
|---|---|---|
| Principali | ||
| Immobile - 1° piano | 150 Mq | 150 Mqc |
| Totale | 150 Mqc | |










Zoom della mappa
Apri con:
Apple Maps
Google Maps
Waze
Apri la mappa
