Vendita
Appartamento a Mugnano di Napoli
MUGNANO DI NAPOLI (NA)
A partire da € 110.250
NUMERO PROCEDURA E DATA ASTA
41124NAN.270126
INDIRIZZO
Via Strada Provinciale Mugnano Melito, 38, , 80018 Mugnano di Napoli
DESCRIZIONE
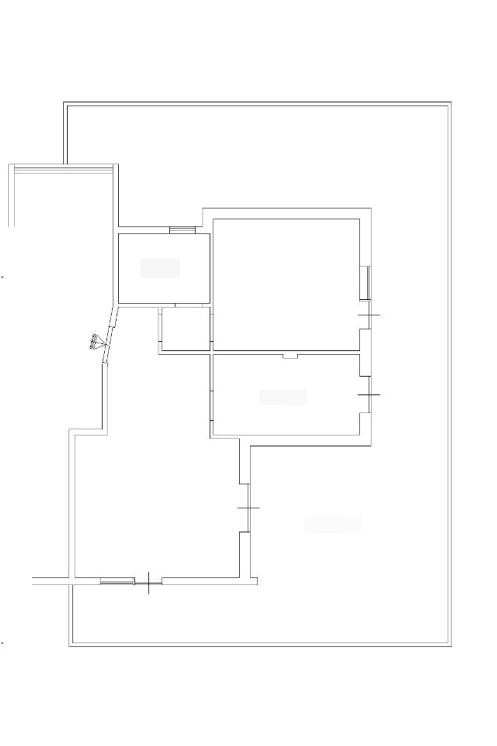
L'appartamento, posto al piano secondo, scala unica, ed è composto da ingresso, soggiorno, cucina/pranzo, disimpegno, bagno, ripostiglio, due camere da letto e due balconi.
ONEIKA – Aste Immobiliari, da oltre 15 anni nel settore delle aste immobiliari, garantisce assistenza specializzata nel campo delle procedure esecutive e delle aste giudiziarie immobiliari.
Lo studio offre:
- Un servizio di assistenza nella ricerca dell'immobile e nell'analisi della documentazione che riguarda la procedura scelta;
- Preparazione dell'istruttoria necessaria alla partecipazione all'asta;
- Partecipazione all'asta con l'assistenza di professionisti seri e competenti;
- Garanzia di assistenza fino alla consegna dell'immobile;
- Supporto, con l'ausilio di specialisti del settore, nell'ottenimento di mutuo o finanziamento se necessario.
Siamo un team di professionisti in grado di fornire la migliore assistenza, studiando con il cliente la giusta strategia finalizzata all'aggiudicazione.
La cura del cliente è la nostra priorità!
La strada per la casa dei tuoi sogni passa da noi...
Contattaci per avere maggiori informazioni sull'immobile e su come partecipare all'asta in totale sicurezza.
Oneika – Aste Immobiliari - Mob. 344.6533655 -AM
41124NAN.270126
INDIRIZZO
Via Strada Provinciale Mugnano Melito, 38, , 80018 Mugnano di Napoli
DESCRIZIONE
L'appartamento, posto al piano secondo, scala unica, ed è composto da ingresso, soggiorno, cucina/pranzo, disimpegno, bagno, ripostiglio, due camere da letto e due balconi.
ONEIKA – Aste Immobiliari, da oltre 15 anni nel settore delle aste immobiliari, garantisce assistenza specializzata nel campo delle procedure esecutive e delle aste giudiziarie immobiliari.
Lo studio offre:
- Un servizio di assistenza nella ricerca dell'immobile e nell'analisi della documentazione che riguarda la procedura scelta;
- Preparazione dell'istruttoria necessaria alla partecipazione all'asta;
- Partecipazione all'asta con l'assistenza di professionisti seri e competenti;
- Garanzia di assistenza fino alla consegna dell'immobile;
- Supporto, con l'ausilio di specialisti del settore, nell'ottenimento di mutuo o finanziamento se necessario.
Siamo un team di professionisti in grado di fornire la migliore assistenza, studiando con il cliente la giusta strategia finalizzata all'aggiudicazione.
La cura del cliente è la nostra priorità!
La strada per la casa dei tuoi sogni passa da noi...
Contattaci per avere maggiori informazioni sull'immobile e su come partecipare all'asta in totale sicurezza.
Oneika – Aste Immobiliari - Mob. 344.6533655 -AM
Contratto Vendita
Asta si
Rif 41124NAN.270126
Prezzo € 110.250
Provincia Napoli
Comune Mugnano di Napoli
Indirizzo Strada Provinciale Mugnano-melito 38">
Vani 5
Camere 2
Bagni 1
Classe energetica
Non indicata
Piano 2 / 4
Riscaldamento autonomo
Condizioni abitabile
Spese condominiali € 1
Anno di costruzione 1967
Cucina abitabile
Consistenze
| Descrizione | Superficie | Sup. comm. |
|---|---|---|
| Principali | ||
| Immobile - 2° piano | 113 Mq | 113 Mqc |
| Totale | 113 Mqc | |











Zoom della mappa
Apri con:
Apple Maps
Google Maps
Waze
Apri la mappa
