Vendita
Appartamento a Baratili San Pietro
BARATILI SAN PIETRO (OR)
A partire da € 69.000
NUMERO PROCEDURA E DATA ASTA
5724OR.110226
INDIRIZZO
Via Eleonora D'Arborea, 45, 09070 Baratili San Pietro OR
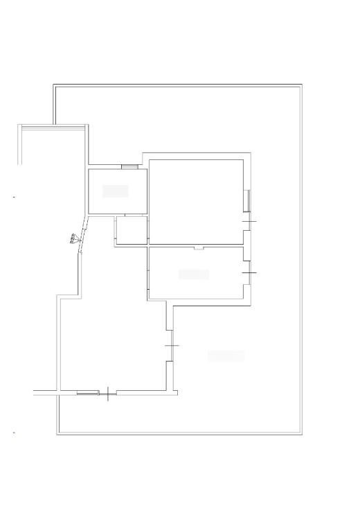
DESCRIZIONE
L'interno dell'abitazione sviluppata al piano terra riscontra quindi la presenza di un lungo corridoio adibito a ingresso e disimpegno che dà accesso alle n.2 camere (di cui una attualmente priva di aero-illuminazione naturale), al soggiorno e alla sala da pranzo; dal soggiorno si accede poi all'antibagno e al bagno.
ONEIKA – Aste Immobiliari, da oltre 15 anni nel settore delle aste immobiliari, garantisce assistenza specializzata nel campo delle procedure esecutive e delle aste giudiziarie immobiliari.
Lo studio offre:
- Un servizio di assistenza nella ricerca dell'immobile e nell'analisi della documentazione che riguarda la procedura scelta;
- Preparazione dell'istruttoria necessaria alla partecipazione all'asta;
- Partecipazione all'asta con l'assistenza di professionisti seri e competenti;
- Garanzia di assistenza fino alla consegna dell'immobile;
- Supporto, con l'ausilio di specialisti del settore, nell'ottenimento di mutuo o finanziamento se necessario.
Siamo un team di professionisti in grado di fornire la migliore assistenza, studiando con il cliente la giusta strategia finalizzata all'aggiudicazione.
La cura del cliente è la nostra priorità!
La strada per la casa dei tuoi sogni passa da noi...
Contattaci per avere maggiori informazioni sull'immobile e su come partecipare all'asta in totale sicurezza.
Oneika – Aste Immobiliari - Mob. 344.6533655 -AM
5724OR.110226
INDIRIZZO
Via Eleonora D'Arborea, 45, 09070 Baratili San Pietro OR
DESCRIZIONE
L'interno dell'abitazione sviluppata al piano terra riscontra quindi la presenza di un lungo corridoio adibito a ingresso e disimpegno che dà accesso alle n.2 camere (di cui una attualmente priva di aero-illuminazione naturale), al soggiorno e alla sala da pranzo; dal soggiorno si accede poi all'antibagno e al bagno.
ONEIKA – Aste Immobiliari, da oltre 15 anni nel settore delle aste immobiliari, garantisce assistenza specializzata nel campo delle procedure esecutive e delle aste giudiziarie immobiliari.
Lo studio offre:
- Un servizio di assistenza nella ricerca dell'immobile e nell'analisi della documentazione che riguarda la procedura scelta;
- Preparazione dell'istruttoria necessaria alla partecipazione all'asta;
- Partecipazione all'asta con l'assistenza di professionisti seri e competenti;
- Garanzia di assistenza fino alla consegna dell'immobile;
- Supporto, con l'ausilio di specialisti del settore, nell'ottenimento di mutuo o finanziamento se necessario.
Siamo un team di professionisti in grado di fornire la migliore assistenza, studiando con il cliente la giusta strategia finalizzata all'aggiudicazione.
La cura del cliente è la nostra priorità!
La strada per la casa dei tuoi sogni passa da noi...
Contattaci per avere maggiori informazioni sull'immobile e su come partecipare all'asta in totale sicurezza.
Oneika – Aste Immobiliari - Mob. 344.6533655 -AM
Contratto Vendita
Asta si
Rif 5724OR.110226
Prezzo € 69.000
Provincia Oristano
Comune Baratili San Pietro
Indirizzo Via Eleonora d'Arborea 45">
Vani 5
Camere 2
Bagni 1
Classe energetica
Non indicata
Riscaldamento autonomo
Condizioni abitabile
Spese condominiali € 1
Anno di costruzione 1967
Cucina angolo cottura
Consistenze
| Descrizione | Superficie | Sup. comm. |
|---|---|---|
| Principali | ||
| Immobile - piano terra | 149 Mq | 149 Mqc |
| Totale | 149 Mqc | |











Zoom della mappa
Apri con:
Apple Maps
Google Maps
Waze
Apri la mappa
