Vendita
Appartamento a Bosa
BOSA (OR)
A partire da € 48.515
NUMERO PROCEDURA E DATA ASTA
2923OR.2.080126 vari lotti disponibili
INDIRIZZO
CORSO VITTORIO EMANUELE II N. 77, 09089 Bosa Oristano
DESCRIZIONE
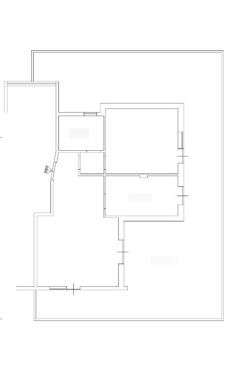
Appartamento piano 2 e 3, Consistenza 5,5 vani, totale 175 mq, composto da ingresso, sala da pranzo, cucinino, bagno, disimpegno, due camere, balcone, terrazzo.
ONEIKA – Aste Immobiliari, da oltre 15 anni nel settore delle aste immobiliari, garantisce assistenza specializzata nel campo delle procedure esecutive e delle aste giudiziarie immobiliari.
Lo studio offre:
- Un servizio di assistenza nella ricerca dell'immobile e nell'analisi della documentazione che riguarda la procedura scelta;
- Preparazione dell'istruttoria necessaria alla partecipazione all'asta;
- Partecipazione all'asta con l'assistenza di professionisti seri e competenti;
- Garanzia di assistenza fino alla consegna dell'immobile;
- Supporto, con l'ausilio di specialisti del settore, nell'ottenimento di mutuo o finanziamento se necessario.
Siamo un team di professionisti in grado di fornire la migliore assistenza, studiando con il cliente la giusta strategia finalizzata all'aggiudicazione.
La cura del cliente è la nostra priorità!
La strada per la casa dei tuoi sogni passa da noi...
Contattaci per avere maggiori informazioni sull'immobile e su come partecipare all'asta in totale sicurezza.
Oneika – Aste Immobiliari - Mob. 344.6533655 - AM
2923OR.2.080126 vari lotti disponibili
INDIRIZZO
CORSO VITTORIO EMANUELE II N. 77, 09089 Bosa Oristano
DESCRIZIONE
Appartamento piano 2 e 3, Consistenza 5,5 vani, totale 175 mq, composto da ingresso, sala da pranzo, cucinino, bagno, disimpegno, due camere, balcone, terrazzo.
ONEIKA – Aste Immobiliari, da oltre 15 anni nel settore delle aste immobiliari, garantisce assistenza specializzata nel campo delle procedure esecutive e delle aste giudiziarie immobiliari.
Lo studio offre:
- Un servizio di assistenza nella ricerca dell'immobile e nell'analisi della documentazione che riguarda la procedura scelta;
- Preparazione dell'istruttoria necessaria alla partecipazione all'asta;
- Partecipazione all'asta con l'assistenza di professionisti seri e competenti;
- Garanzia di assistenza fino alla consegna dell'immobile;
- Supporto, con l'ausilio di specialisti del settore, nell'ottenimento di mutuo o finanziamento se necessario.
Siamo un team di professionisti in grado di fornire la migliore assistenza, studiando con il cliente la giusta strategia finalizzata all'aggiudicazione.
La cura del cliente è la nostra priorità!
La strada per la casa dei tuoi sogni passa da noi...
Contattaci per avere maggiori informazioni sull'immobile e su come partecipare all'asta in totale sicurezza.
Oneika – Aste Immobiliari - Mob. 344.6533655 - AM
Contratto Vendita
Asta si
Rif 2923OR.2.080126 vari lotti disponibili
Prezzo € 48.515
Provincia Oristano
Comune Bosa
Indirizzo Corso Vittorio Emanuele ii 77">
Vani 6
Camere 2
Bagni 1
Classe energetica
Non indicata
Piano 2 / 4
Riscaldamento autonomo
Condizioni abitabile
Spese condominiali € 1
Anno di costruzione 1967
Cucina abitabile
Consistenze
| Descrizione | Superficie | Sup. comm. |
|---|---|---|
| Principali | ||
| Immobile - 2° piano | 175 Mq | 175 Mqc |
| Totale | 175 Mqc | |











Zoom della mappa
Apri con:
Apple Maps
Google Maps
Waze
Apri la mappa
