Vendita
Terratetto a Castel Volturno
CASTEL VOLTURNO (CE)
A partire da € 22.125
NUMERO PROCEDURA E DATA ASTA
8924SAN.200126
INDIRIZZO
Via Potenza, 81030 Castel Volturno CE
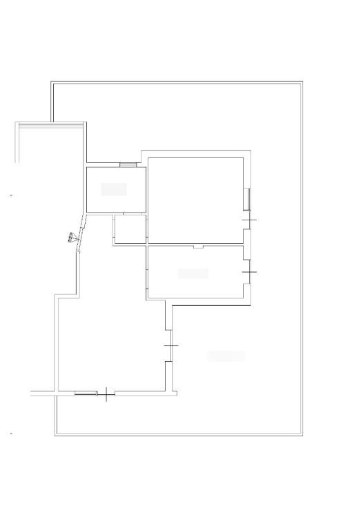
DESCRIZIONE
Fabbricato articolato su due piani fuori terra , con annessa area scoperta. Il piano terra è composto da locale deposito, servizio igienico e ripostiglio. Il primo piano è diviso in due unità immobiliari con balcone comune: a) la prima unità abitativa è composta da ingresso/disimpegno, cucina con camino, due camere e bagno; b) la seconda unità abitativa è composta da ingresso/disimpegno, cucina, due camere e bagno.
ONEIKA – Aste Immobiliari, da oltre 15 anni nel settore delle aste immobiliari, garantisce assistenza specializzata nel campo delle procedure esecutive e delle aste giudiziarie immobiliari.
Lo studio offre:
- Un servizio di assistenza nella ricerca dell'immobile e nell'analisi della documentazione che riguarda la procedura scelta;
- Preparazione dell'istruttoria necessaria alla partecipazione all'asta;
- Partecipazione all'asta con l'assistenza di professionisti seri e competenti;
- Garanzia di assistenza fino alla consegna dell'immobile;
- Supporto, con l'ausilio di specialisti del settore, nell'ottenimento di mutuo o finanziamento se necessario.
Siamo un team di professionisti in grado di fornire la migliore assistenza, studiando con il cliente la giusta strategia finalizzata all'aggiudicazione.
La cura del cliente è la nostra priorità!
La strada per la casa dei tuoi sogni passa da noi...
Contattaci per avere maggiori informazioni sull'immobile e su come partecipare all'asta in totale sicurezza.
Oneika – Aste Immobiliari - Mob. 344.6533655 - AM
8924SAN.200126
INDIRIZZO
Via Potenza, 81030 Castel Volturno CE
DESCRIZIONE
Fabbricato articolato su due piani fuori terra , con annessa area scoperta. Il piano terra è composto da locale deposito, servizio igienico e ripostiglio. Il primo piano è diviso in due unità immobiliari con balcone comune: a) la prima unità abitativa è composta da ingresso/disimpegno, cucina con camino, due camere e bagno; b) la seconda unità abitativa è composta da ingresso/disimpegno, cucina, due camere e bagno.
ONEIKA – Aste Immobiliari, da oltre 15 anni nel settore delle aste immobiliari, garantisce assistenza specializzata nel campo delle procedure esecutive e delle aste giudiziarie immobiliari.
Lo studio offre:
- Un servizio di assistenza nella ricerca dell'immobile e nell'analisi della documentazione che riguarda la procedura scelta;
- Preparazione dell'istruttoria necessaria alla partecipazione all'asta;
- Partecipazione all'asta con l'assistenza di professionisti seri e competenti;
- Garanzia di assistenza fino alla consegna dell'immobile;
- Supporto, con l'ausilio di specialisti del settore, nell'ottenimento di mutuo o finanziamento se necessario.
Siamo un team di professionisti in grado di fornire la migliore assistenza, studiando con il cliente la giusta strategia finalizzata all'aggiudicazione.
La cura del cliente è la nostra priorità!
La strada per la casa dei tuoi sogni passa da noi...
Contattaci per avere maggiori informazioni sull'immobile e su come partecipare all'asta in totale sicurezza.
Oneika – Aste Immobiliari - Mob. 344.6533655 - AM
Contratto Vendita
Asta si
Rif 8924SAN.200126
Prezzo € 22.125
Provincia Caserta
Comune Castel Volturno
Indirizzo Via Potenza">
Vani 10
Camere 4
Bagni 3
Classe energetica
Non indicata
Riscaldamento inesistente
Condizioni abitabile
Spese condominiali € 1
Anno di costruzione 1967
Cucina abitabile
Consistenze
| Descrizione | Superficie | Sup. comm. |
|---|---|---|
| Principali | ||
| Immobile - piano terra | 124 Mq | 124 Mqc |
| Totale | 124 Mqc | |











Zoom della mappa
Apri con:
Apple Maps
Google Maps
Waze
Apri la mappa
