Vendita
Appartamento a Giugliano in Campania
GIUGLIANO IN CAMPANIA (NA)
A partire da € 47.144
NUMERO PROCEDURA E DATA ASTA
48419NA.3.171225 vari lotti disponibili
INDIRIZZO
Str. Vicinale Pacchianella, 85, 80014 Giugliano in Campania NA
DESCRIZIONE
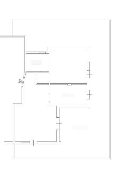
Appartamento sito al piano secondo, composto da quattro vani, un disimpegno, due bagni, un balcone; Immobile 2) – lastrico solare sito al piano terzo, composto da unica vasta superficie scoperta.
ONEIKA – Aste Immobiliari, da oltre 15 anni nel settore delle aste immobiliari, garantisce assistenza specializzata nel campo delle procedure esecutive e delle aste giudiziarie immobiliari.
Lo studio offre:
- Un servizio di assistenza nella ricerca dell'immobile e nell'analisi della documentazione che riguarda la procedura scelta;
- Preparazione dell'istruttoria necessaria alla partecipazione all'asta;
- Partecipazione all'asta con l'assistenza di professionisti seri e competenti;
- Garanzia di assistenza fino alla consegna dell'immobile;
- Supporto, con l'ausilio di specialisti del settore, nell'ottenimento di mutuo o finanziamento se necessario.
Siamo un team di professionisti in grado di fornire la migliore assistenza, studiando con il cliente la giusta strategia finalizzata all'aggiudicazione.
La cura del cliente è la nostra priorità!
La strada per la casa dei tuoi sogni passa da noi...
Contattaci per avere maggiori informazioni sull'immobile e su come partecipare all'asta in totale sicurezza.
Oneika – Aste Immobiliari - Mob. 344.6533655 - AM
48419NA.3.171225 vari lotti disponibili
INDIRIZZO
Str. Vicinale Pacchianella, 85, 80014 Giugliano in Campania NA
DESCRIZIONE
Appartamento sito al piano secondo, composto da quattro vani, un disimpegno, due bagni, un balcone; Immobile 2) – lastrico solare sito al piano terzo, composto da unica vasta superficie scoperta.
ONEIKA – Aste Immobiliari, da oltre 15 anni nel settore delle aste immobiliari, garantisce assistenza specializzata nel campo delle procedure esecutive e delle aste giudiziarie immobiliari.
Lo studio offre:
- Un servizio di assistenza nella ricerca dell'immobile e nell'analisi della documentazione che riguarda la procedura scelta;
- Preparazione dell'istruttoria necessaria alla partecipazione all'asta;
- Partecipazione all'asta con l'assistenza di professionisti seri e competenti;
- Garanzia di assistenza fino alla consegna dell'immobile;
- Supporto, con l'ausilio di specialisti del settore, nell'ottenimento di mutuo o finanziamento se necessario.
Siamo un team di professionisti in grado di fornire la migliore assistenza, studiando con il cliente la giusta strategia finalizzata all'aggiudicazione.
La cura del cliente è la nostra priorità!
La strada per la casa dei tuoi sogni passa da noi...
Contattaci per avere maggiori informazioni sull'immobile e su come partecipare all'asta in totale sicurezza.
Oneika – Aste Immobiliari - Mob. 344.6533655 - AM
Contratto Vendita
Asta si
Rif 48419NAN.3.171225 vari lotti disponibili
Prezzo € 47.144
Provincia Napoli
Comune Giugliano in Campania
Indirizzo Strada Vicinale Pacchianella 85">
Vani 6
Camere 2
Bagni 2
Classe energetica
Non indicata
Piano 2 / 3
Riscaldamento centralizzato
Condizioni abitabile
Spese condominiali € 1
Anno di costruzione 1967
Cucina abitabile
Consistenze
| Descrizione | Superficie | Sup. comm. |
|---|---|---|
| Principali | ||
| Immobile - 2° piano | 142 Mq | 142 Mqc |
| Totale | 142 Mqc | |











Zoom della mappa
Apri con:
Apple Maps
Google Maps
Waze
Apri la mappa
