Vendita
Villa a Aprilia
APRILIA (LT)
- ZONA Campo di Carne - Pantanelle
A partire da € 158.203
NUMERO PROCEDURA E DATA ASTA
17317LT.130126
INDIRIZZO
Via Giovenco, 2, 04011 Aprilia
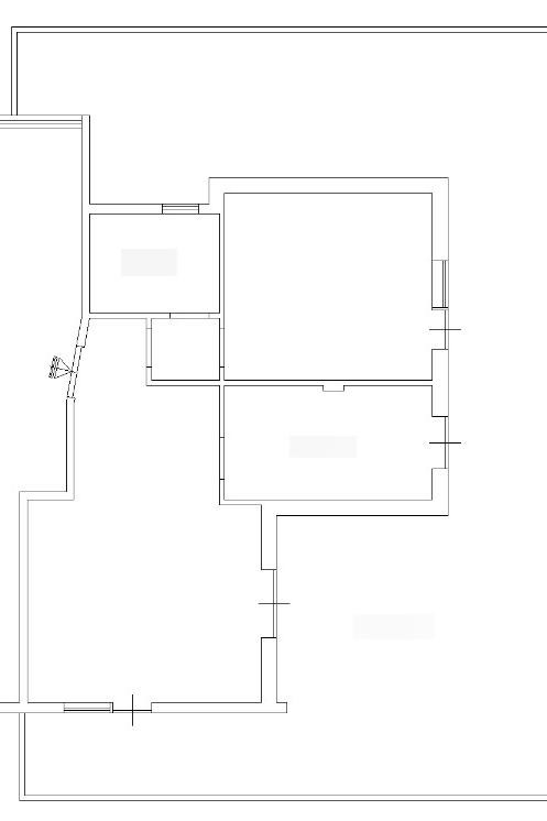
DESCRIZIONE
Villa unifamiliare distribuita su due livelli. Piano terra composto da ingresso, soggiorno, quattro camere, disimpegno, due ripostigli, tre bagni, lavanderia, portico e terrazzo. Piano primo composto da cucina, soggiorno, due camere e due bagni. Completa la proprietà una corte esclusiva.
ONEIKA – Aste Immobiliari, da oltre 15 anni nel settore delle aste immobiliari, garantisce assistenza specializzata nel campo delle procedure esecutive e delle aste giudiziarie immobiliari.
Lo studio offre:
- Un servizio di assistenza nella ricerca dell'immobile e nell'analisi della documentazione che riguarda la procedura scelta;
- Preparazione dell'istruttoria necessaria alla partecipazione all'asta;
- Partecipazione all'asta con l'assistenza di professionisti seri e competenti;
- Garanzia di assistenza fino alla consegna dell'immobile;
- Supporto, con l'ausilio di specialisti del settore, nell'ottenimento di mutuo o finanziamento se necessario.
Siamo un team di professionisti in grado di fornire la migliore assistenza, studiando con il cliente la giusta strategia finalizzata all'aggiudicazione.
La cura del cliente è la nostra priorità!
La strada per la casa dei tuoi sogni passa da noi...
Contattaci per avere maggiori informazioni sull'immobile e su come partecipare all'asta in totale sicurezza.
Oneika – Aste Immobiliari - Mob. 344.6533655 (SI)
17317LT.130126
INDIRIZZO
Via Giovenco, 2, 04011 Aprilia
DESCRIZIONE
Villa unifamiliare distribuita su due livelli. Piano terra composto da ingresso, soggiorno, quattro camere, disimpegno, due ripostigli, tre bagni, lavanderia, portico e terrazzo. Piano primo composto da cucina, soggiorno, due camere e due bagni. Completa la proprietà una corte esclusiva.
ONEIKA – Aste Immobiliari, da oltre 15 anni nel settore delle aste immobiliari, garantisce assistenza specializzata nel campo delle procedure esecutive e delle aste giudiziarie immobiliari.
Lo studio offre:
- Un servizio di assistenza nella ricerca dell'immobile e nell'analisi della documentazione che riguarda la procedura scelta;
- Preparazione dell'istruttoria necessaria alla partecipazione all'asta;
- Partecipazione all'asta con l'assistenza di professionisti seri e competenti;
- Garanzia di assistenza fino alla consegna dell'immobile;
- Supporto, con l'ausilio di specialisti del settore, nell'ottenimento di mutuo o finanziamento se necessario.
Siamo un team di professionisti in grado di fornire la migliore assistenza, studiando con il cliente la giusta strategia finalizzata all'aggiudicazione.
La cura del cliente è la nostra priorità!
La strada per la casa dei tuoi sogni passa da noi...
Contattaci per avere maggiori informazioni sull'immobile e su come partecipare all'asta in totale sicurezza.
Oneika – Aste Immobiliari - Mob. 344.6533655 (SI)
Contratto Vendita
Asta si
Rif 17317LT.130126
Prezzo € 158.203
Provincia Latina
Comune Aprilia
Zona Campo di Carne - Pantanelle
Indirizzo Via Giovenco 3">
Vani 11
Camere 6
Bagni 4
Classe energetica
Non indicata
Riscaldamento autonomo
Condizioni abitabile
Anno di costruzione 1967
Cucina abitabile
Consistenze
| Descrizione | Superficie | Sup. comm. |
|---|---|---|
| Principali | ||
| Immobile - piano terra | 280 Mq | 280 Mqc |
| Totale | 280 Mqc | |










Zoom della mappa
Apri con:
Apple Maps
Google Maps
Waze
Apri la mappa
