Vendita
Appartamento a Rubiana
RUBIANA (TO)
A partire da € 53.250
NUMERO PROCEDURA E DATA ASTA
19325TO.270126
INDIRIZZO
Borgata Balma 14, 10040 Rubiana Torino
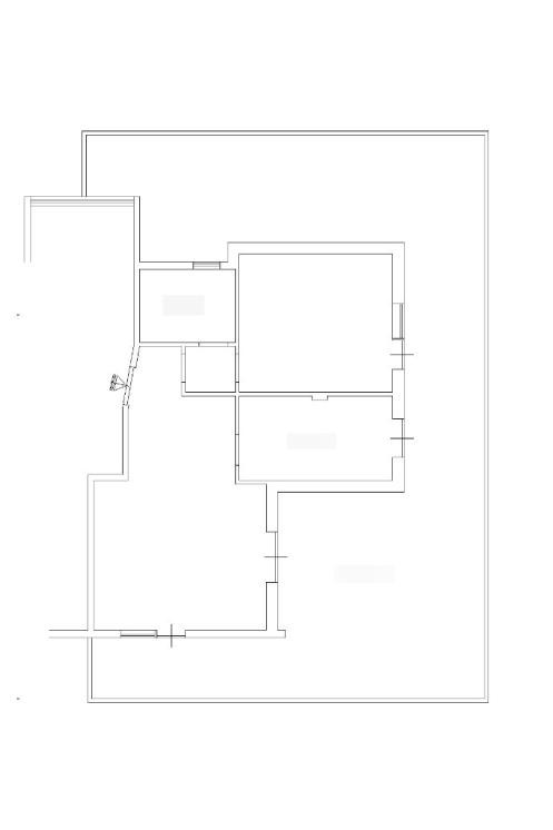
DESCRIZIONE
Alloggio posto al piano seminterrato (terreno rispetto al cortile antistante) con accesso dal cortile comune antistante tramite portoncino in legno, composto da cucina, ampio soggiorno, tre camere, due bagni di cui uno cieco e un ripostiglio, con annessa al piano seminterrato autorimessa privata.
ONEIKA – Aste Immobiliari, da oltre 15 anni nel settore delle aste immobiliari, garantisce assistenza specializzata nel campo delle procedure esecutive e delle aste giudiziarie immobiliari.
Lo studio offre:
- Un servizio di assistenza nella ricerca dell'immobile e nell'analisi della documentazione che riguarda la procedura scelta;
- Preparazione dell'istruttoria necessaria alla partecipazione all'asta;
- Partecipazione all'asta con l'assistenza di professionisti seri e competenti;
- Garanzia di assistenza fino alla consegna dell'immobile;
- Supporto, con l'ausilio di specialisti del settore, nell'ottenimento di mutuo o finanziamento se necessario.
Siamo un team di professionisti in grado di fornire la migliore assistenza, studiando con il cliente la giusta strategia finalizzata all'aggiudicazione.
La cura del cliente è la nostra priorità!
La strada per la casa dei tuoi sogni passa da noi...
Contattaci per avere maggiori informazioni sull'immobile e su come partecipare all'asta in totale sicurezza.
Oneika – Aste Immobiliari - Mob. 344.6533655 - AM
19325TO.270126
INDIRIZZO
Borgata Balma 14, 10040 Rubiana Torino
DESCRIZIONE
Alloggio posto al piano seminterrato (terreno rispetto al cortile antistante) con accesso dal cortile comune antistante tramite portoncino in legno, composto da cucina, ampio soggiorno, tre camere, due bagni di cui uno cieco e un ripostiglio, con annessa al piano seminterrato autorimessa privata.
ONEIKA – Aste Immobiliari, da oltre 15 anni nel settore delle aste immobiliari, garantisce assistenza specializzata nel campo delle procedure esecutive e delle aste giudiziarie immobiliari.
Lo studio offre:
- Un servizio di assistenza nella ricerca dell'immobile e nell'analisi della documentazione che riguarda la procedura scelta;
- Preparazione dell'istruttoria necessaria alla partecipazione all'asta;
- Partecipazione all'asta con l'assistenza di professionisti seri e competenti;
- Garanzia di assistenza fino alla consegna dell'immobile;
- Supporto, con l'ausilio di specialisti del settore, nell'ottenimento di mutuo o finanziamento se necessario.
Siamo un team di professionisti in grado di fornire la migliore assistenza, studiando con il cliente la giusta strategia finalizzata all'aggiudicazione.
La cura del cliente è la nostra priorità!
La strada per la casa dei tuoi sogni passa da noi...
Contattaci per avere maggiori informazioni sull'immobile e su come partecipare all'asta in totale sicurezza.
Oneika – Aste Immobiliari - Mob. 344.6533655 - AM
Contratto Vendita
Asta si
Rif 19325TO.270126
Prezzo € 53.250
Provincia Torino
Comune Rubiana
Indirizzo Borgata Balma 14">
Vani 7
Camere 3
Bagni 2
Classe energetica
Non indicata
Riscaldamento autonomo
Condizioni abitabile
Spese condominiali € 1
Anno di costruzione 1967
Cucina abitabile
Consistenze
| Descrizione | Superficie | Sup. comm. |
|---|---|---|
| Principali | ||
| Immobile - piano terra | 104 Mq | 104 Mqc |
| Totale | 104 Mqc | |










Zoom della mappa
Apri con:
Apple Maps
Google Maps
Waze
Apri la mappa
