Vendita
Appartamento a Napoli
NAPOLI (NA)
- ZONA Garibaldi - Ferrovia
A partire da € 38.625
NUMERO PROCEDURA E DATA ASTA
1425NA.270126
INDIRIZZO
Via Padre Ludovico da Casoria, 30, 80142 Napoli NA
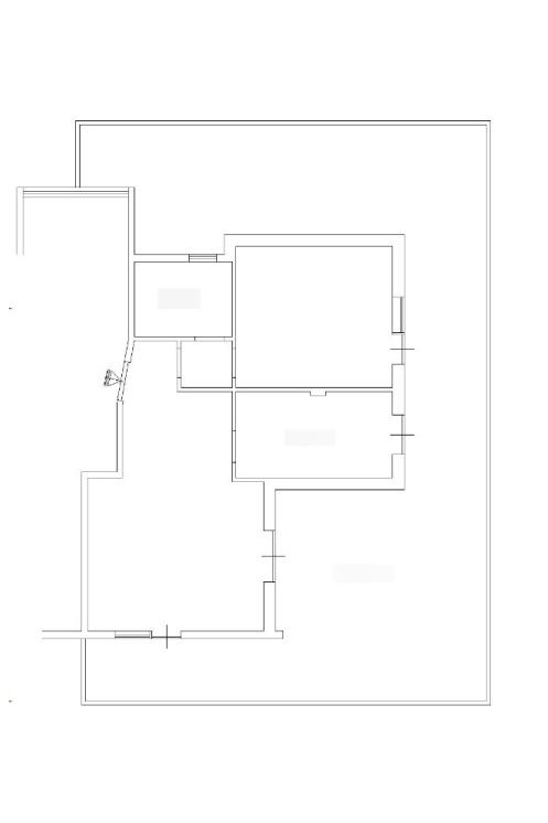
DESCRIZIONE
Appartamento ubicato al piano 4° con soprastante sottotetto posto al piano 5 con accesso esterno. L'abitazione si apre su un vano disimpegno centrale, dal quale si accede alla cucina e al vano letto. All'interno della cucina è ricavato un piccolo servizio igienico, composto da vaso igienico e lavabo. Oltre alla cucina ci sono due vani da letto ed all'interno di uno di essi sono collocati un lavabo e un box doccia. Il vano cucina è dotato di balcone.
ONEIKA – Aste Immobiliari, da oltre 15 anni nel settore delle aste immobiliari, garantisce assistenza specializzata nel campo delle procedure esecutive e delle aste giudiziarie immobiliari.
Lo studio offre:
- Un servizio di assistenza nella ricerca dell'immobile e nell'analisi della documentazione che riguarda la procedura scelta;
- Preparazione dell'istruttoria necessaria alla partecipazione all'asta;
- Partecipazione all'asta con l'assistenza di professionisti seri e competenti;
- Garanzia di assistenza fino alla consegna dell'immobile;
- Supporto, con l'ausilio di specialisti del settore, nell'ottenimento di mutuo o finanziamento se necessario.
Siamo un team di professionisti in grado di fornire la migliore assistenza, studiando con il cliente la giusta strategia finalizzata all'aggiudicazione.
La cura del cliente è la nostra priorità!
La strada per la casa dei tuoi sogni passa da noi...
Contattaci per avere maggiori informazioni sull'immobile e su come partecipare all'asta in totale sicurezza.
Oneika – Aste Immobiliari - Mob. 344.6533655 - AM
1425NA.270126
INDIRIZZO
Via Padre Ludovico da Casoria, 30, 80142 Napoli NA
DESCRIZIONE
Appartamento ubicato al piano 4° con soprastante sottotetto posto al piano 5 con accesso esterno. L'abitazione si apre su un vano disimpegno centrale, dal quale si accede alla cucina e al vano letto. All'interno della cucina è ricavato un piccolo servizio igienico, composto da vaso igienico e lavabo. Oltre alla cucina ci sono due vani da letto ed all'interno di uno di essi sono collocati un lavabo e un box doccia. Il vano cucina è dotato di balcone.
ONEIKA – Aste Immobiliari, da oltre 15 anni nel settore delle aste immobiliari, garantisce assistenza specializzata nel campo delle procedure esecutive e delle aste giudiziarie immobiliari.
Lo studio offre:
- Un servizio di assistenza nella ricerca dell'immobile e nell'analisi della documentazione che riguarda la procedura scelta;
- Preparazione dell'istruttoria necessaria alla partecipazione all'asta;
- Partecipazione all'asta con l'assistenza di professionisti seri e competenti;
- Garanzia di assistenza fino alla consegna dell'immobile;
- Supporto, con l'ausilio di specialisti del settore, nell'ottenimento di mutuo o finanziamento se necessario.
Siamo un team di professionisti in grado di fornire la migliore assistenza, studiando con il cliente la giusta strategia finalizzata all'aggiudicazione.
La cura del cliente è la nostra priorità!
La strada per la casa dei tuoi sogni passa da noi...
Contattaci per avere maggiori informazioni sull'immobile e su come partecipare all'asta in totale sicurezza.
Oneika – Aste Immobiliari - Mob. 344.6533655 - AM
Contratto Vendita
Asta si
Rif 1425NA.270126
Prezzo € 38.625
Provincia Napoli
Comune Napoli
Zona Garibaldi - Ferrovia
Indirizzo Via Padre Ludovico da Casoria 30">
Vani 4
Camere 1
Bagni 1
Classe energetica
Non indicata
Piano 4 / 2
Riscaldamento autonomo
Condizioni abitabile
Spese condominiali € 1
Anno di costruzione 1967
Cucina abitabile
Consistenze
| Descrizione | Superficie | Sup. comm. |
|---|---|---|
| Principali | ||
| Immobile - 4° piano | 50 Mq | 50 Mqc |
| Totale | 50 Mqc | |











Zoom della mappa
Apri con:
Apple Maps
Google Maps
Waze
Apri la mappa
