Vendita
Terratetto a Marcianise
MARCIANISE (CE)
A partire da € 113.475
NUMERO PROCEDURA E DATA ASTA
29623SAN.181225
INDIRIZZO
Via Gaetano Donizetti n.6, 81025 Marcianise Caserta
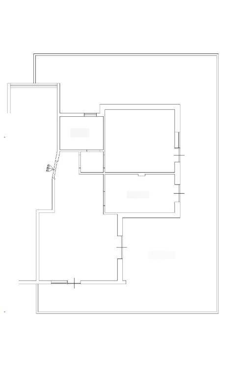
DESCRIZIONE
Edificio terra/cielo costituito da due appartamenti di cui uno posto al piano terra (con annesso deposito al piano seminterrato) mentre l'altro è posto piano primo con annesso sottotetto in corso di costruzione. Inoltre al piano terra, a servizio esclusivo dell'edificio, vi è un porticato ed una piccola area di corte.L'appartamento al piano terra è composto da disimpegno, cucina, due camere da letto e servizio igienico, oltre porticato e locale deposito adibito a tavernetta al piano seminterrato ed un locale pluriuso con soppalco adibito a garage con annesso servizio igienico.L'appartamento al primo piano è composto da ampio vano soggiorno/salone, cucina, due servizi igienici, tre camere da letto, oltre balconi e terrazzo su cui insistono un cucinino ed una tettoia in legno. Annesso all'appartamento vi è un sottotetto allo stato rustico con relativi balconi .
ONEIKA – Aste Immobiliari, da oltre 15 anni nel settore delle aste immobiliari, garantisce assistenza specializzata nel campo delle procedure esecutive e delle aste giudiziarie immobiliari.
Lo studio offre:
- Un servizio di assistenza nella ricerca dell'immobile e nell'analisi della documentazione che riguarda la procedura scelta;
- Preparazione dell'istruttoria necessaria alla partecipazione all'asta;
- Partecipazione all'asta con l'assistenza di professionisti seri e competenti;
- Garanzia di assistenza fino alla consegna dell'immobile;
- Supporto, con l'ausilio di specialisti del settore, nell'ottenimento di mutuo o finanziamento se necessario.
Siamo un team di professionisti in grado di fornire la migliore assistenza, studiando con il cliente la giusta strategia finalizzata all'aggiudicazione.
La cura del cliente è la nostra priorità!
La strada per la casa dei tuoi sogni passa da noi...
Contattaci per avere maggiori informazioni sull'immobile e su come partecipare all'asta in totale sicurezza.
Oneika – Aste Immobiliari - Mob. 344.6533655 - AM
29623SAN.181225
INDIRIZZO
Via Gaetano Donizetti n.6, 81025 Marcianise Caserta
DESCRIZIONE
Edificio terra/cielo costituito da due appartamenti di cui uno posto al piano terra (con annesso deposito al piano seminterrato) mentre l'altro è posto piano primo con annesso sottotetto in corso di costruzione. Inoltre al piano terra, a servizio esclusivo dell'edificio, vi è un porticato ed una piccola area di corte.L'appartamento al piano terra è composto da disimpegno, cucina, due camere da letto e servizio igienico, oltre porticato e locale deposito adibito a tavernetta al piano seminterrato ed un locale pluriuso con soppalco adibito a garage con annesso servizio igienico.L'appartamento al primo piano è composto da ampio vano soggiorno/salone, cucina, due servizi igienici, tre camere da letto, oltre balconi e terrazzo su cui insistono un cucinino ed una tettoia in legno. Annesso all'appartamento vi è un sottotetto allo stato rustico con relativi balconi .
ONEIKA – Aste Immobiliari, da oltre 15 anni nel settore delle aste immobiliari, garantisce assistenza specializzata nel campo delle procedure esecutive e delle aste giudiziarie immobiliari.
Lo studio offre:
- Un servizio di assistenza nella ricerca dell'immobile e nell'analisi della documentazione che riguarda la procedura scelta;
- Preparazione dell'istruttoria necessaria alla partecipazione all'asta;
- Partecipazione all'asta con l'assistenza di professionisti seri e competenti;
- Garanzia di assistenza fino alla consegna dell'immobile;
- Supporto, con l'ausilio di specialisti del settore, nell'ottenimento di mutuo o finanziamento se necessario.
Siamo un team di professionisti in grado di fornire la migliore assistenza, studiando con il cliente la giusta strategia finalizzata all'aggiudicazione.
La cura del cliente è la nostra priorità!
La strada per la casa dei tuoi sogni passa da noi...
Contattaci per avere maggiori informazioni sull'immobile e su come partecipare all'asta in totale sicurezza.
Oneika – Aste Immobiliari - Mob. 344.6533655 - AM
Contratto Vendita
Asta si
Rif 29623SAN.181225
Prezzo € 113.475
Provincia Caserta
Comune Marcianise
Indirizzo Via Gaetano Donizetti 6">
Vani 11
Camere 5
Bagni 3
Classe energetica
Non indicata
Riscaldamento autonomo
Condizioni abitabile
Spese condominiali € 1
Anno di costruzione 1967
Cucina abitabile
Consistenze
| Descrizione | Superficie | Sup. comm. |
|---|---|---|
| Principali | ||
| Immobile - piano terra | 300 Mq | 300 Mqc |
| Totale | 300 Mqc | |












Zoom della mappa
Apri con:
Apple Maps
Google Maps
Waze
Apri la mappa
